🌴 Căn góc, mặt tiền đường 16m, Ngay kcn sóng thần, Dĩ An - Bán nhà 2 tầng 183mv, full thổ

Thông tin chi tiết

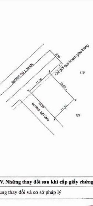
🚗 LÔ GÓC Full Thổ Cư. * DT: 183M 11.5x16 VUÔNG. * ĐƯỜNG RỘNG 16M CÁCH 100m CỔNG KHU CÔNG NGHIỆP SÓNG THẦN, QUỐC LỘ 1A. Thuận tiện duy chuyển trung tâm TPHCM. + Vị trí khu công nghiệp nhiều công ty kinh doanh đa nghành nghề. + Hiện trạng mặt tiền phía trước đang kinh doanh quán ăn đông đúc, phía sau gồm 20 phòng trọ. Tổng thu nhập hơn 20tr/tháng. + Căn góc một MT đường rộng 16m và mặt hẻm 8m. + Sổ hồng riêng, công chứng ngay.

Giá: 8,8 tỷ Diện tích: 183
Địa chỉ tài sản:
Đường số 2, Phường Dĩ An, Hồ Chí Minh

Đường số 2, Phường An Bình, Thành phố Dĩ An, Bình Dương

(địa chỉ cũ)

Các thông tin khác

Mã tin17179867Hướng_Phòng ăncheck
Loại tinCần bánĐường trước nhà16mNhà bếpcheck
Loại BDSNhà mặt tiềnPháp lýSổ hồng/ Sổ đỏSân thượngcheck
Chiều ngang11,5mSố lầu2Chổ để xe hơicheck
Chiều dài16mSố phòng ngủ3Chính chủ---
Hình ảnh

Hình ảnh

🌴 Căn góc, mặt tiền đường 16m, Ngay kcn sóng thần, Dĩ An - Bán nhà 2 tầng 183mv, full thổ
  • 🌴 Căn góc, mặt tiền đường 16m, Ngay kcn sóng thần, Dĩ An - Bán nhà 2 tầng 183mv, full thổ - 0
  • 🌴 Căn góc, mặt tiền đường 16m, Ngay kcn sóng thần, Dĩ An - Bán nhà 2 tầng 183mv, full thổ - 1
  • 🌴 Căn góc, mặt tiền đường 16m, Ngay kcn sóng thần, Dĩ An - Bán nhà 2 tầng 183mv, full thổ - 2
  • 🌴 Căn góc, mặt tiền đường 16m, Ngay kcn sóng thần, Dĩ An - Bán nhà 2 tầng 183mv, full thổ - 3
  • 🌴 Căn góc, mặt tiền đường 16m, Ngay kcn sóng thần, Dĩ An - Bán nhà 2 tầng 183mv, full thổ - 4
Có thể bạn muốn xem: Bán nhà An Bình

Phản ánh tin rao vi phạm

Thông tin phản ánh của Quý khách giúp chúng tôi sàn lọc thông tin tốt hơn và loại trừ các nhà môi giới không trung thực. Xin trân trọng cám ơn.


Tôi không muốn xem tin của người đăng này trong vòng: Tất cả các tin của thành viên này sẽ ẩn đi với bạn trong khoảng thời gian bạn đã chọn.
Mã an toàn:

Bất động sản nổi bật

Cần bán Nhà mặt tiền tại Thành phố Dĩ An

Bán nhà Mặt Tiền KD QL 1K , 235 m2 , Nhỉnh 40tr /m2 , Lh @939.208.616

Bán nhà Mặt Tiền KD QL 1K , 235 m2 , Nhỉnh 40tr /m2 , Lh @939.208.616 ✅️ 235m2 ( 6 x 36 ) nở hậu 9.5 150m2 ODT ✅️ Trước mặt Tiền Kinh Doanh buôn bán ✅️ Sau nhà 1 trệt 1 lầu có lối đi riêng ✅️ Đáp ứng mọi nhu cầ...... << Xem chi tiết >>

40m2 tầng5 phòng ngủChỗ để xe
Giá: 10,5 tỷ Diện tích: 235 KT: 6x36m

Đường Quốc Lộ 1k, Phường Đông Hòa, Hồ Chí Minh

Đường Quốc Lộ 1k, Phường Đông Hòa, Thành phố Dĩ An, Bình Dương (cũ)

Nhà mặt tiền chợ Việt Lập Dĩ An – KD sầm uất – 8.5Tỷ TL

Bán gấp nhà mặt tiền kinh doanh khu Việt Lập, Dĩ An, TP.HCM. 💎Giá bán: 8,5 Tỷ ( TL ). - Diện tích: 5m x 24m = 120m2. - Hướng: Tây Nam. - Nhà xây mới 1 trệt 2 lầu đúc kiên cố, nhà mới xây xong bao hoàn công. - Vị tr...... << Xem chi tiết >>

6m3 tầng3 phòng ngủ
Giá: 8,5 tỷ Diện tích: 120

Đường Lê Trọng Tấn, Phường Dĩ An, Hồ Chí Minh

Đường Lê Trọng Tấn, Phường An Bình, Thành phố Dĩ An, Bình Dương (cũ)

Mặt tiền Nguyễn Bỉnh Khiêm – trung tâm Dĩ An – vị trí vàng sát Big C & Làng ĐH – chỉ 8,9 t

💎 MẶT TIỀN NGUYỄN BỈNH KHIÊM – TRUNG TÂM ĐÔNG HÒA – DĨ AN (KA339NM) 📍 Vị trí vàng: Ngay chợ Đông Hòa – sát Big C Dĩ An & Làng Đại Học Quốc Gia TP.HCM. Khu kinh doanh sầm uất, dân trí cao – vị trí không thể thay th...... << Xem chi tiết >>

8m
Giá: 8,99 tỷ Diện tích: 150 KT: 8x19m

Đường Nguyễn Bính, Phường Đông Hòa, Hồ Chí Minh

Đường Nguyễn Bính, Phường Đông Hòa, Thành phố Dĩ An, Bình Dương (cũ)

Lô góc 8m mặt tiền Hà Huy Giáp đối diện sân vận động Đông Hòa đường 8m thông, full thổ cư

💎 ĐẤT MẶT TIỀN 8M – ĐỐI DIỆN SÂN VẬN ĐỘNG ĐÔNG HÒA – KINH DOANH ĐA NGHỀ SINH LỜI CAO (C2TBD616) 📍 Vị trí vàng: Ngay trung tâm phường Đông Hòa – TP. Dĩ An, đối diện sân vận động Đông Hòa, chỉ 100m ra đường Trần Hưng ...... << Xem chi tiết >>

8m
Giá: 9,1 tỷ Diện tích: 130 KT: 8x16,5m

Đường Hà Huy Giáp, Phường Đông Hòa, Hồ Chí Minh

Đường Hà Huy Giáp, Phường Đông Hòa, Thành phố Dĩ An, Bình Dương (cũ)

Nhà mặt tiền kinh doanh trung tâm hành chính Dĩ An, P Dĩ An, TP Dĩ An.

Nhà mặt tiền kinh doanh trung tâm hành chính Dĩ An, phường Dĩ An, TP Dĩ An. Nhà 10 tỷ TL- 110m2 (5x22m). Thổ cư 100%. Sổ hồng hoàn công Hỗ trợ vay ngân hàng 70% Vị trí: Mặt tiền đường rộng thông 2 đầu kinh doan...... << Xem chi tiết >>

16m3 tầng4 phòng ngủ
Giá: 10 tỷ Diện tích: 110

Đường Nguyễn An Ninh, Phường Dĩ An, Hồ Chí Minh

Đường Nguyễn An Ninh, Phường Dĩ An, Thành phố Dĩ An, Bình Dương (cũ)