Bán đất full thổ cư thạnh Xuân 52 phường thạnh Xuân quận 12

Thông tin chi tiết

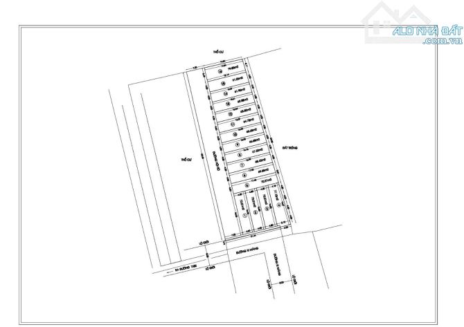
🌈🌈 bán lô đất đường thạnh Xuân 52 phường thạnh Xuân quận 12, DT 1,570m²( 26*66mgiá 45ty TL Đất Sổ hồng riêng công chứng ngay ✅ Kết cấu: đất trống bằng phẳng, vuông vức đẹp, chủ đã lên sẵn bản vẽ tách 16 lô với diện tích 4x16.5m/lô🌴 🌴 - Đường trước nhà: xe hơi chạy quay đầu.🌴 🌴 - Diện tích: 1.570m2 full thổ cư (ngang 26m, dài 66m) ✅ Vị trí gần chợ Đường, Hà Huy giáp+ Khu vực dân cư sầm uất, xây dựng tự do: Sổ hồng riêng. gần cầu phú long, đường Hà Huy giáp, đường thạnh Xuân 62 tx62, thạnh Xuân 52 tx 52, Tiện ích xung quanh đầy đủ 👉 LH A huyên gặp chủ lv #phanquanghuyen #nhậnkýgửinhàđất

Giá: 45 tỷ Diện tích: 1.570
Địa chỉ tài sản:
Đường Thạnh Xuân 52, Phường Thới An, Hồ Chí Minh

Đường Thạnh Xuân 52, Phường Thạnh Xuân, Quận 12, Hồ Chí Minh

(địa chỉ cũ)

Các thông tin khác

Mã tin16912664Hướng_Phòng ăn---
Loại tinCần bánĐường trước nhà6mNhà bếp---
Loại BDSNhà trong hẻmPháp lý---Sân thượng---
Chiều ngang26mSố lầu---Chổ để xe hơi---
Chiều dài66mSố phòng ngủ---Chính chủ---
Hình ảnh

Hình ảnh

Bán đất full thổ cư thạnh Xuân 52 phường thạnh Xuân quận 12
  • Bán đất full thổ cư thạnh Xuân 52 phường thạnh Xuân quận 12 - 0
  • Bán đất full thổ cư thạnh Xuân 52 phường thạnh Xuân quận 12 - 1
  • Bán đất full thổ cư thạnh Xuân 52 phường thạnh Xuân quận 12 - 2
  • Bán đất full thổ cư thạnh Xuân 52 phường thạnh Xuân quận 12 - 3
  • Bán đất full thổ cư thạnh Xuân 52 phường thạnh Xuân quận 12 - 4
Có thể bạn muốn xem: Bán nhà Thạnh Xuân

Phản ánh tin rao vi phạm

Thông tin phản ánh của Quý khách giúp chúng tôi sàn lọc thông tin tốt hơn và loại trừ các nhà môi giới không trung thực. Xin trân trọng cám ơn.


Tôi không muốn xem tin của người đăng này trong vòng: Tất cả các tin của thành viên này sẽ ẩn đi với bạn trong khoảng thời gian bạn đã chọn.
Mã an toàn:

Bất động sản nổi bật

Cần bán Nhà trong hẻm tại Quận 12

NHÀ MỚI ĐẸP 64m2 HẺM THÔNG ĐƯỜNG HT45, P. HIỆP THÀNH, Q.12 – GIÁ 4.79 TỶ.

Thông tin chi tiết: • Diện tích: 64m² (4m x 16). • Kết cấu: 1 trệt 1 lửng, thiết kế hiện đại. • Công năng: • Tầng trệt có sẵn 1 phòng ngủ tiện lợi cho người lớn tuổi. • Trên lầu bố trí 2 phòng ngủ rộng rãi, đầy...... << Xem chi tiết >>

4m2 tầng3 phòng ngủChỗ để xe
Giá: 47,9 tỷ Diện tích: 64 KT: 4x16mHướng: Tây Bắc

Đường Hiệp Thành 45, Phường Tân Thới Hiệp, Hồ Chí Minh

Đường Hiệp Thành 45, Phường Hiệp Thành, Quận 12, Hồ Chí Minh (cũ)

ĐẤT VỊ TRÍ ĐẸP - FULL THÔ CƯ- 500M2 - 2 MẶT TIỀN ĐƯỜNG - THẠNH LỘC Q12.

🔥 ĐẤT ĐẸP QUẬN 12 – 500M² FULL THỔ – MẶT HẺM XE HƠI 6M – SỔ HỒNG RIÊNG 🔥 📍 Địa chỉ: Đường TL47, Phường Thạnh Lộc, Quận 12 👉 Vị trí đắc địa: • Gần cầu Phú Long, trường Cao Đẳng Điện Lực • Hẻm xe hơi trước nhà ...... << Xem chi tiết >>

6mChỗ để xe
Giá: 37 tỷ Diện tích: 500 KT: 9,5x54m

Đường Thạnh Lộc 47, Phường An Phú Đông, Hồ Chí Minh

Đường Thạnh Lộc 47, Phường Thạnh Lộc, Quận 12, Hồ Chí Minh (cũ)

Bán nhà quốc lộ 1A, tân chánh hiệp, quận 12. Hcm

⛔ HÀNG THƠM NHƯ MÍT , NHIỀU NĂM MỚI XUẤT HIỆN ( 🌋🌋🌋GIÁ CHỈ CÓ 32 TRIỆU 1M2 TL ) 🎉 -Bán phường Tân Chánh Hiệp thổ cư 100% hẻm 1 sẹc cách mặt tiền đường quốc lộ 1A khoảng 30 m kế bên phần mềm Quang Trung quận 12 T...... << Xem chi tiết >>

8m1 tầng4 phòng ngủChỗ để xe
Giá: 48 tỷ Diện tích: 1500 KT: 35x40m

Đường Quốc Lộ 1A, Phường Trung Mỹ Tây, Hồ Chí Minh

Đường Quốc Lộ 1A, Phường Tân Chánh Hiệp, Quận 12, Hồ Chí Minh (cũ)

🏡 DUY NHẤT – NHÀ ĐẸP NỞ HẬU– VỊ TRÍ VÀNG TẠI TÂN THỚI HIỆP Q12 4,9 tỷ TL

Căn nhà cực kỳ hiếm: ngang 4.6m nở hậu 5.1m, diện tích 72m², kết cấu trệt + lầu đúc BTCT kiên cố. Nội thất lát gạch mới, dọn vào ở ngay. Thiết kế: 2PN lớn, 2WC, ban công thoáng, phòng khách – bếp đầy đủ, sân trước để xe...... << Xem chi tiết >>

3m1 tầng2 phòng ngủ
Giá: 49 tỷ Diện tích: 72 KT: 4,6x14,5m

Đường Trương Thị Hoa, Phường Tân Thới Hiệp, Hồ Chí Minh

Đường Trương Thị Hoa, Phường Tân Thới Hiệp, Quận 12, Hồ Chí Minh (cũ)

Bán Nhà Vườn 1.226m2 Đông Hưng Thuận 23 Q12 View Kênh Tham Lương Giáp Gò Vấp

BÁN NHÀ VƯỜN VILLA NGHỈ DƯỠNG 1.226M2 – MẶT TIỀN ĐÔNG HƯNG THUẬN 23, Q12 – VIEW KÊNH THAM LƯƠNG, GIÁP GÒ VẤP 🔹 Thông tin chi tiết: • Diện tích đất: 1.226m2 (ngang khủng 26m). • Trong đó 160m2 thổ cư, còn lại đất ...... << Xem chi tiết >>

5m1 phòng ngủChỗ để xe
Giá: 39 tỷ Diện tích: 1226 KT: 26x49m

Đường Đông Hưng Thuận 23, Phường Đông Hưng Thuận, Hồ Chí Minh

Đường Đông Hưng Thuận 23, Phường Đông Hưng Thuận, Quận 12, Hồ Chí Minh (cũ)