Bán đất mặt đường Máng Nước, Vĩnh Khê, An Đồng 89m + 27m LƯU KO giá 9,x tỷ

Thông tin chi tiết

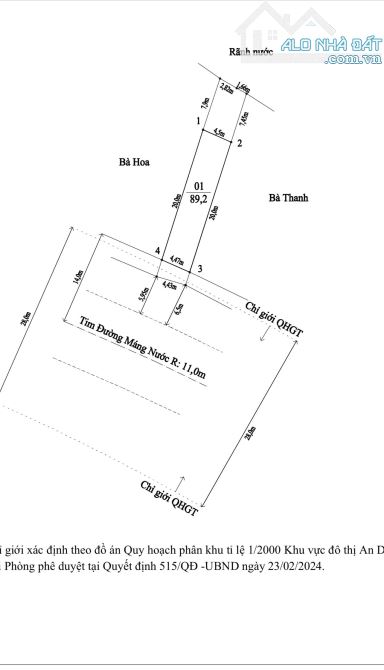
Bán đất mặt đường Máng Nước, Vĩnh Khê, An Đồng 89m + 27m LƯU KO giá 9,x tỷ Lô đất ngay gần chợ Vĩnh Khê vị trí kinh doanh buôn bán Xung quanh vô vàn tiện ích dân sinh Diện tích 89m + 27m LƯU KO Ngang 4,47m Đường trước đất rộng 28m Pháp lý rõ ràng, - Bìa đỏ chính chủ Giá chỉ 9,2 tỷ Khách hàng quan tâm tới sản phẩm liên hệ SĐT/Zalo Em Thuận Chuyên viên tư vấn BĐS khu vực An Dương & Hồng Bàng

Giá: 9,2 tỷ Diện tích: 89
Địa chỉ tài sản:
Đường Máng Nước, Phường An Hải, Hải Phòng

Đường Máng Nước, Phường An Đồng, Quận An Dương, Hải Phòng

(địa chỉ cũ)

Các thông tin khác

Mã tin17415786Hướng_Phòng ăn---
Loại tinCần bánĐường trước nhà28mNhà bếp---
Loại BDSĐất thổ cư, đất ởPháp lýSổ hồng/ Sổ đỏSân thượng---
Chiều ngang4,47mSố lầu---Chổ để xe hơi---
Chiều dài---Số phòng ngủ---Chính chủ---
Hình ảnh

Hình ảnh

Bán đất mặt đường Máng Nước, Vĩnh Khê,  An Đồng 89m + 27m LƯU KO giá 9,x tỷ
  • Bán đất mặt đường Máng Nước, Vĩnh Khê,  An Đồng 89m + 27m LƯU KO giá 9,x tỷ - 0
  • Bán đất mặt đường Máng Nước, Vĩnh Khê,  An Đồng 89m + 27m LƯU KO giá 9,x tỷ - 1
  • Bán đất mặt đường Máng Nước, Vĩnh Khê,  An Đồng 89m + 27m LƯU KO giá 9,x tỷ - 2
  • Bán đất mặt đường Máng Nước, Vĩnh Khê,  An Đồng 89m + 27m LƯU KO giá 9,x tỷ - 3
  • Bán đất mặt đường Máng Nước, Vĩnh Khê,  An Đồng 89m + 27m LƯU KO giá 9,x tỷ - 4
Có thể bạn muốn xem:

Phản ánh tin rao vi phạm

Thông tin phản ánh của Quý khách giúp chúng tôi sàn lọc thông tin tốt hơn và loại trừ các nhà môi giới không trung thực. Xin trân trọng cám ơn.


Tôi không muốn xem tin của người đăng này trong vòng: Tất cả các tin của thành viên này sẽ ẩn đi với bạn trong khoảng thời gian bạn đã chọn.
Mã an toàn:

Bất động sản nổi bật

Cần bán Đất thổ cư, đất ở tại Quận An Dương

Bán 100m2 đất tại đường Máng An Dương Hải Phòng

🏡 Nhà C4 mặt đường Máng Nước – An Đồng 🏡 📐 Diện tích: 100m² – Ngang: 5m 🌞 Hướng Nam – Đường 28m siêu rộng 💰 Giá: 7,x tỷ ✅ Vị trí đắc địa, kinh doanh buôn bán cực tốt, khu dân cư sầm uất. ☎️ Liên hệ: Nam (BĐS An...... << Xem chi tiết >>

28m
Giá: 7,8 tỷ Diện tích: 100 KT: 5x20mHướng: Nam

Đường Máng, Phường An Hải, Hải Phòng

Đường Máng, Phường An Đồng, Quận An Dương, Hải Phòng (cũ)

Ms Linh-Rẻ nhất khu phân lô Chapi Cái Tắt, An Đồng, An Dương: 200m2 ngang 10m giá chỉ 10tỷ

🌟 BÁN LÔ ĐẤT ĐẸP – KHU PHÂN LÔ CHAPI, CÁI TẮT – AN ĐỒNG, AN DƯƠNG 🌟 • Diện tích: 200 m², mặt tiền rộng 10 m, đất vuông vắn, dễ thiết kế xây dựng. • Đường trước nhà: 10 m trải nhựa, có vỉa hè rộng rãi, ô tô tránh ...... << Xem chi tiết >>

10m
Giá: 10 tỷ Diện tích: 200 Hướng: Nam

Đường Cái Tắt, Phường An Hải, Hải Phòng

Đường Cái Tắt, Phường An Hải, Quận An Dương, Hải Phòng (cũ)

Ms Linh-Siêu phẩm mặt đường Máng Nước, An Đồng ngay gần chợ, vị trí siêu đẹp

Bán đất mặt đường Máng Nước, Vĩnh Khê, An Đồng 89m + 27m LƯU KO giá 9,x tỷ - Lô đất ngay gần chợ Vĩnh Khê vị trí kinh doanh buôn bán siêu đẹp - Xung quanh vô vàn tiện ích dân sinh, giao thông thuận tiện - Diện tíc...... << Xem chi tiết >>

21m
Giá: 9,2 tỷ Diện tích: 89 Hướng: Nam

Đường Máng Nước, Phường An Hải, Hải Phòng

Đường Máng Nước, Phường An Hải, Quận An Dương, Hải Phòng (cũ)

Ms Linh-Bán 96m2 đất mặt đường Máng Nước, An Đồng, đoạn Cái Tắt siêu đẹp

- Vị trí nằm trên đoạn đẹp nhất, mặt đường Máng Nước, đoạn Cái Tắt, An Đồng, An Dương. - Mặt đường sầm uất nhất nhì thành phố Hải Phòng, lượng dân cư cực đông, kinh doanh buôn bán sầm uất. - Diện tích: 96m2 - Mặt tiền...... << Xem chi tiết >>

21m
Giá: 10,5 tỷ Diện tích: 96 Hướng: Bắc

Đường Máng Nước, Phường An Hải, Hải Phòng

Đường Máng Nước, Phường An Hải, Quận An Dương, Hải Phòng (cũ)

Bán đất mặt đường 208, QL17B, khu 5A phường An Phong. 150m2

✅Vị trí Vàng đẹp nhất quận buôn bán kinh doanh mọi mặt hàng, giao thông thuận tiện, công nhân qua lại , tấp lập sầm uất ⭐️Diện tích 150m. Ngang 5m ⭐️Bìa đỏ chính chủ ☎️Toàn BĐS : ✅KIM CHỈ NAM : GIỚI THIỆU SẢN...... << Xem chi tiết >>

20m
Giá: 9,3 tỷ Diện tích: 150 Hướng: Bắc

Đường 208, Phường An Hải, Hải Phòng

Đường 208, Phường Hồng Thái, Quận An Dương, Hải Phòng (cũ)