Bán nhà mặt tiền Âu Cơ – 271m2 công nhận -có giấy phép xây dựng hầm + 7 tầng 41 tỷ TL

Thông tin chi tiết

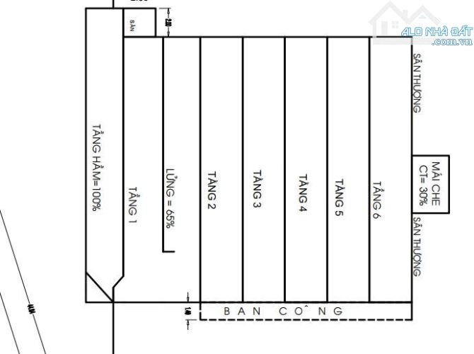
Bán nhà diện tích lớn – có giấy phép xây dựng hầm + 7 tầng Diện tích: 6.2m x 45m, công nhận 271,2m² Kết cấu hiện tại: 1 trệt + 1 lửng + 2 lầu + sân thượng (tổng diện tích sàn ~ 870m²) Giấy phép xây dựng: Hầm + 7 tầng + sân thượng Pháp lý: Sổ hồng riêng, chính chủ Giá bán: 41 tỷ (thương lượng)

Giá: 41 tỷ Diện tích: 271
Địa chỉ tài sản:
Đường Âu Cơ, Phường Tân Sơn Nhì, Hồ Chí Minh

Đường Âu Cơ, Phường Tân Sơn Nhì, Quận Tân Phú, Hồ Chí Minh

(địa chỉ cũ)

Các thông tin khác

Mã tin17422873Hướng_Phòng ăn---
Loại tinCần bánĐường trước nhà16mNhà bếp---
Loại BDSNhà mặt tiềnPháp lý---Sân thượng---
Chiều ngang6,2mSố lầu4Chổ để xe hơi---
Chiều dài45mSố phòng ngủ6Chính chủ---
Hình ảnh

Hình ảnh

Bán nhà mặt tiền Âu Cơ – 271m2 công nhận -có giấy phép xây dựng hầm + 7 tầng 41 tỷ TL
  • Bán nhà mặt tiền Âu Cơ – 271m2 công nhận -có giấy phép xây dựng hầm + 7 tầng 41 tỷ TL - 0
  • Bán nhà mặt tiền Âu Cơ – 271m2 công nhận -có giấy phép xây dựng hầm + 7 tầng 41 tỷ TL - 1
  • Bán nhà mặt tiền Âu Cơ – 271m2 công nhận -có giấy phép xây dựng hầm + 7 tầng 41 tỷ TL - 2
Có thể bạn muốn xem: Bán nhà Tân Sơn Nhì

Phản ánh tin rao vi phạm

Thông tin phản ánh của Quý khách giúp chúng tôi sàn lọc thông tin tốt hơn và loại trừ các nhà môi giới không trung thực. Xin trân trọng cám ơn.


Tôi không muốn xem tin của người đăng này trong vòng: Tất cả các tin của thành viên này sẽ ẩn đi với bạn trong khoảng thời gian bạn đã chọn.
Mã an toàn:

Bất động sản nổi bật

Cần bán Nhà mặt tiền tại Quận Tân Phú

Bán Lô Đất Huỳnh Văn Gấm Quận Tân Phú. 19m x 35m. C4. Khu xây cao. giá 47 tỷ

Bán Lô Đất Huỳnh Văn Gấm Quận Tân Phú. - Diện tích : 19m x 35m - Hiện trạng : Cấp 4 - Khu xây dựng cao tầng - Vị trí tài sản nằm gần Đại Học Công Nghệ Thực Phẩm - Nhà Ga T3 - khu thương mại Padora. Thích hợp xâ...... << Xem chi tiết >>

8m1 tầng1 phòng ngủ
Giá: 47 tỷ Diện tích: 700

Đường Huỳnh Văn Gấm, Phường Tây Thạnh, Hồ Chí Minh

Đường Huỳnh Văn Gấm, Phường Tây Thạnh, Quận Tân Phú, Hồ Chí Minh (cũ)

Building Q. Tân Phú - DT sàn trên 1000m2 - DT Ngang 8x22m nở hậu 8.5m - Xây 1 hầm 7 tầng

- Tòa nhà văn phòng mới, vị trí mặt tiền đường kinh doanh, Gần ngã 4 Gò Dầu - Tân Phú. - Phù hợp cho Anh/Chị cần tìm tòa nhà mới sử dụng ngay, ví trí đẹp để kinh doanh. - Thông số chi tiết như sau: + Ngang 8m, d...... << Xem chi tiết >>

20m8 tầng10 phòng ngủChỗ để xe
Giá: 37,5 tỷ Diện tích: 180 KT: 8x22m

Đường Lê Đình Thám, Phường Phú Thọ Hòa, Hồ Chí Minh

Đường Lê Đình Thám, Phường Tân Quý, Quận Tân Phú, Hồ Chí Minh (cũ)

📍(Q. Tân Phú) - HOT- Toà MT-P. Tân Quý -  8m ( 8.5m ) x 22.5m -  1 hầm + 5 lầu - 38.5 Tỷ

📍(𝑸. 𝑻â𝒏 𝑷𝒉ú) 𝐓ò𝐚 𝐍𝐡à 𝐌ặ𝐭 𝐓𝐢ề𝐧 𝐏. 𝐓â𝐧 𝐐𝐮ý – 𝐆ầ𝐧 𝐀𝐞𝐨𝐧 𝐌𝐚𝐥𝐥 – 𝟖𝐦 × 𝟐𝟐.𝟓𝐦 (𝐍ở 𝐡ậ𝐮 𝟖.𝟓𝐦) – 𝟏 𝐇ầ𝐦 + 𝟓 𝐋ầ𝐮 + 𝐒𝐓 – 𝟑𝟖. × 𝐓ỷ (𝐓𝐡ươ𝐧𝐠 𝐋ượ𝐧𝐠) 🏤 👉 Nhà đẹp, hiện đại, ...... << Xem chi tiết >>

16m5 tầng16 phòng ngủChỗ để xe
Giá: 38,5 tỷ Diện tích: 180 KT: 8x22,5m

Đường Lê Đình Thám, Phường Phú Thọ Hòa, Hồ Chí Minh

Đường Lê Đình Thám, Phường Tân Quý, Quận Tân Phú, Hồ Chí Minh (cũ)

📍 (𝑸. Tân Phú ) -  Toà nhà hàng hiếm - P. Tân Thành - 7.1x 22m - 1 hầm + 3 lầu - 35 tỷ

📍(𝑸. 𝑻â𝒏 𝑷𝒉ú) – ✨ 𝐒𝐈Ê𝐔 𝐇𝐎𝐓 ✨ – 𝐓ò𝐚 𝐍𝐡à 𝐡à𝐧𝐠 𝐡𝐢ế𝐦 𝐏. 𝐓â𝐧 𝐓𝐡à𝐧𝐡 – 𝟕.𝟏𝐦 × 𝟐𝟐𝐦 – 𝟏 𝐇ầ𝐦 + 𝐓𝐫ệ𝐭 + 𝟑 𝐋ầu𝐮 – 💰 𝟑𝟓 𝐓ỷ (𝐓𝐡ươ𝐧𝐠 𝐋ượ𝐧𝐠) 🏢 👉 Tòa nhà cực hiếm khu Tân Thành –...... << Xem chi tiết >>

12m3 tầng14 phòng ngủChỗ để xe
Giá: 35 tỷ Diện tích: 154 KT: 7,1x22m

Đường Phan Đình Phùng, Phường Tân Sơn Nhì, Hồ Chí Minh

Đường Phan Đình Phùng, Phường Tân Thành, Quận Tân Phú, Hồ Chí Minh (cũ)

Bán tòa nhà MT LÊ ĐÌNH TÁM 8 X 23 với 6 lầu mới giá 39.5 tỷ tl

Bán tòa nhà MT Lê Đình Thám P.Tân Quý Q,TP - DT: (8m x 22,5m) - Nở hậu đẹp: (8,5m) -DTSD 1050m2 SÀn - 1 hầm 1 trệt 1 lửng 5 lầu - Có thang máy, PCCC đầy đủ - Vị trí: Đường 16m, có lề 4m. Ngay sát bên đường Cầu Xéo,...... << Xem chi tiết >>

16m6 tầng6 phòng ngủ
Giá: 39,5 tỷ Diện tích: 180 KT: 8x22mHướng: Nam

Đường Lê Đình Thám, Phường Phú Thọ Hòa, Hồ Chí Minh

Đường Lê Đình Thám, Phường Tân Quý, Quận Tân Phú, Hồ Chí Minh (cũ)