CHÙA LÁNG, TÒA CĂN HỘ 8T, DÒNG TIỀN 300TR/THÁNG, CÁCH HỒ 20M, 2 MẶT NGÕ THÔNG, 39.5 tỷ

Thông tin chi tiết

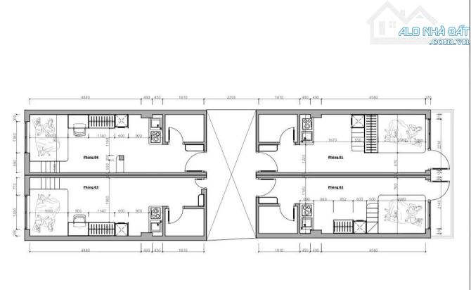
🏢 CHÙA LÁNG – TÒA CĂN HỘ 8 TẦNG – DÒNG TIỀN 300TR/THÁNG – CÁCH HỒ CHỈ 20M – 2 MẶT NGÕ THÔNG – GIÁ CHÀO 39.5 TỶ 📍 Đống Đa – Hà Nội 💥 TÒA NHÀ KHAI THÁC DÒNG TIỀN SIÊU KHỦNG – VỊ TRÍ VÀNG GIỮA LÒNG ĐỐNG ĐA – CỰC HIẾM NHÀ BÁN 🔹 Diện tích: 105m² 🔹 Mặt tiền: 6m – Vuông vắn, chuẩn phong thủy 🔹 Xây dựng: 8 tầng thang máy – kết cấu bền vững, vận hành tối ưu 🔹 Tổng cộng: 26 phòng khép kín full nội thất, khai thác 300 triệu/tháng 🔹 Thiết kế thông minh: • Tầng 1: Để xe rộng rãi • Tầng 2 đến tầng 7: Mỗi tầng 4 phòng khép kín • Tầng 8: 2 phòng full tiện nghi 🔹 Pháp lý: Sổ đỏ chính chủ, GPXD đầy đủ, PCCC đạt chuẩn 🚘 Lợi thế vị trí: – Hai mặt ngõ trước sau: 1 ô tô vào nhà, 1 ngõ ba gác, cực thoáng – vận hành hiệu quả – Chỉ 20m ra mặt hồ Chùa Láng, view hồ thoáng mát – giá trị sinh lời tăng đều – Bao quanh là các trường ĐH top đầu: Ngoại Thương, HV Ngoại Giao, HV Thanh Thiếu Niên… – Gần Bệnh viện Nhi TW, chợ, trung tâm thương mại, giao thông thuận tiện 💸 Khai thác dòng tiền ngay – Không cần cải tạo – Quản lý đơn giản – Lấp kín phòng 📞 Quan tâm sản phẩm dòng tiền cực hiếm này – Liên he Linh Giang ngay hôm nay!

Giá: 39,5 tỷ Diện tích: 105
Địa chỉ tài sản:
Phố Chùa Láng, Phường Láng, Hà Nội

Phố Chùa Láng, Phường Láng Thượng, Quận Đống Đa, Hà Nội

(địa chỉ cũ)

Các thông tin khác

Mã tin16980808Hướng_Phòng ăn---
Loại tinCần bánĐường trước nhà3mNhà bếp---
Loại BDSNhà trong hẻmPháp lý---Sân thượng---
Chiều ngang---Số lầu8Chổ để xe hơi---
Chiều dài---Số phòng ngủ26Chính chủ---
Hình ảnh

Hình ảnh

CHÙA LÁNG, TÒA CĂN HỘ 8T, DÒNG TIỀN 300TR/THÁNG, CÁCH HỒ 20M, 2 MẶT NGÕ THÔNG, 39.5 tỷ
  • CHÙA LÁNG, TÒA CĂN HỘ 8T, DÒNG TIỀN 300TR/THÁNG, CÁCH HỒ 20M, 2 MẶT NGÕ THÔNG, 39.5 tỷ - 0
  • CHÙA LÁNG, TÒA CĂN HỘ 8T, DÒNG TIỀN 300TR/THÁNG, CÁCH HỒ 20M, 2 MẶT NGÕ THÔNG, 39.5 tỷ - 1
Có thể bạn muốn xem: Bán nhà Láng Thượng

Phản ánh tin rao vi phạm

Thông tin phản ánh của Quý khách giúp chúng tôi sàn lọc thông tin tốt hơn và loại trừ các nhà môi giới không trung thực. Xin trân trọng cám ơn.


Tôi không muốn xem tin của người đăng này trong vòng: Tất cả các tin của thành viên này sẽ ẩn đi với bạn trong khoảng thời gian bạn đã chọn.
Mã an toàn:

Bất động sản nổi bật

Cần bán Nhà trong hẻm tại Quận Đống Đa

Bán ccmn Thái hà, nhà mới, ngõ ô tô, 9T- 31P doanh thu 1 tỉ/ năm

HAI MẶT NGÕ - DÂN TRÍ CAO - Ô TÔ - NGÕ THÔNG TỨ TUNG - 31 PHÒNG - DÒNG TIỀN CỰC KHỦNG 9 Tầng, thang máy. Còn mới đến 99%, giấy phép xây dựng, bản thiết kế, hệ thống phòng cháy chữa cháy đầy đủ Doanh thu hơn 1 tỷ/ n...... << Xem chi tiết >>

6m9 tầng31 phòng ngủ
Giá: 36 tỷ Diện tích: 70

Phố Thái Hà, Phường Đống Đa, Hà Nội

Phố Thái Hà, Phường Trung Liệt, Quận Đống Đa, Hà Nội (cũ)

BÁN NHÀ MẶT PHỐ NGÕ THÔNG PHONG ✅ ĐỐNG ĐA ✅ 52M² x 5 TẦNG x 32 TỶ

BÁN NHÀ MẶT PHỐ NGÕ THÔNG PHONG ✅ ĐỐNG ĐA ✅ 52M² x 5 TẦNG x 32 TỶ 🌟 SIÊU PHẨM TRIỆU ĐÔ – LÔ GÓC – KINH DOANH ĐỈNH – Ô TÔ TRÁNH – VỊ TRÍ TRUNG TÂM 🌟 📍 Vị trí mặt ngõ to như phố, ô tô dừng đỗ tránh nhau, vài bướ...... << Xem chi tiết >>

6m5 tầng3 phòng ngủ
Giá: 32 tỷ Diện tích: 52

Phố Thông Phong, Phường Đống Đa, Hà Nội

Phố Thông Phong, Phường Đống Đa, Quận Đống Đa, Hà Nội (cũ)

CCMN LÔ GÓC SIÊU VIP – PHỐ THÁI THỊNH, ĐỐNG ĐA 90M2, 24P KHÉP KÍN CHỈ 40.5 TỶ CÓ THƯƠNG LƯ

• 75m², tầng 3 đua ra 90m², xây 7 tầng – 24 phòng khép kín full nội thất. • Lô góc 2 mặt tiền, ngõ trước 5m, kinh doanh tấp nập. • Doanh thu sấp xỉ 200tr/tháng, có GPXD & PCCC đầy đủ. • Trung tâm Đống Đa, tiện ích ngậ...... << Xem chi tiết >>

8m8 tầng24 phòng ngủChỗ để xe
Giá: 40,5 tỷ Diện tích: 90 KT: 5,2x15m

Phố Thái Thịnh 1, Phường Láng, Hà Nội

Phố Thái Thịnh 1, Phường Láng, Quận Đống Đa, Hà Nội (cũ)

Lõi Đống Đa - Oto tránh oto vào nhà💥106m2 - 4T - MT6.7m - 35 Tỷ, Giao thông thuận tiện

Vị trí hiếm có – trung tâm quận Đống Đa, ngõ rộng ô tô tránh nhau thoải mái, chỉ vài bước ra phố Xã Đàn, Nam Đồng, Phạm Ngọc Thạch. Kết cấu: 4 tầng kiên cố, thiết kế thoáng, tối ưu công năng 👉 T1 : 3 Phòng làm việc ...... << Xem chi tiết >>

5m3 tầng2 phòng ngủChỗ để xe
Giá: 35 tỷ Diện tích: 106 KT: 6,7x15,82m

Phố Đặng Văn Ngữ, Phường Đống Đa, Hà Nội

Phố Đặng Văn Ngữ, Phường Nam Đồng, Quận Đống Đa, Hà Nội (cũ)

TT Đống Đa - Oto tránh vỉa hè kinh doanh sầm uất - 2 thoáng, 71m2 - 6T thang máy - MT4.4m

- Khu trung quận Đống Đa ngõ ô tô tránh vìa hè, kinh doanh sầm uất, mọi mặt hàng. - Chủ đang cho thuê 50tr/tháng. - Thiết kế: 6 tầng thang máy chủ tự xây chắc chắn. + Tầng 1: kinh doanh + vs. + Tầng 2,3,4,5: Mỗi tầng...... << Xem chi tiết >>

6m6 tầng8 phòng ngủChỗ để xe
Giá: 33,5 tỷ Diện tích: 71 KT: 4,4x16,13m

Phố Pháo Đài Láng, Phường Láng, Hà Nội

Phố Pháo Đài Láng, Phường Láng Hạ, Quận Đống Đa, Hà Nội (cũ)