HOÀNG HOA THÁM, BA ĐÌNH - 122M² - MT 7.1M - 26 TỶ - CCMN 28 PHÒNG, DOANH THU 150TR/THÁNG

Thông tin chi tiết

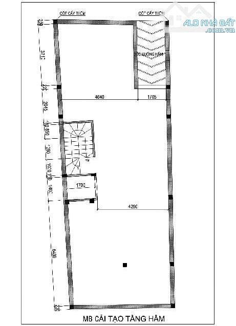
Hoàng Hoa Thám - 122m² - Mặt tiền 7.1m - 7 Tầng / 28 Phòng - 26 Tỷ - Lô Góc 3 Thoáng, Chờ Ra Mặt Đường Lớn. THÔNG TIN CHI TIẾT: Siêu phẩm đầu tư – "Cỗ máy in tiền": Bán tòa nhà Chung Cư Mini (CCMN) tại trung tâm quận Ba Đình, được thiết kế chuyên nghiệp để tối đa hóa lợi nhuận. Với 28 phòng và căn hộ full nội thất, tòa nhà đang tạo ra dòng tiền đỉnh cao 150 triệu/tháng (1.8 tỷ/năm). Vị trí gần các trường Đại học, bệnh viện lớn đảm bảo tỷ lệ lấp đầy luôn ở mức tối đa. Tiềm năng tăng giá X2, X3: Một trong những giá trị lớn nhất của tài sản là tầm nhìn tương lai. Tòa nhà nằm trong khu vực quy hoạch mở đường lớn, sau khi hoàn thành sẽ ra mặt đường lớn, hứa hẹn giá trị bất động sản sẽ tăng vọt. Vị trí lô góc với 3 mặt thoáng vĩnh viễn là một lợi thế độc tôn. Thiết kế đẳng cấp và an toàn: Tòa nhà 7 tầng được xây dựng trên diện tích 122m², mặt tiền rộng 7.1m, trang bị thang máy cao cấp. Tất cả các phòng đều có ban công hoặc cửa sổ lớn, đón ánh sáng tự nhiên, cực kỳ thoáng đãng. Đặc biệt, tòa nhà đã được trang bị hệ thống PCCC đầy đủ theo tiêu chuẩn, đảm bảo an toàn tuyệt đối cho người thuê. Bố trí công năng chi tiết: Tầng hầm: Sức chứa 30 xe máy. Tầng 1: 04 căn hộ khép kín (có gác xép bê tông). Tầng 2: 05 căn hộ khép kín. Tầng 3, 4: Mỗi tầng 06 căn hộ khép kín (có gác xép bê tông). Tầng 5: 04 căn hộ studio (mỗi căn 2 phòng ngủ) khép kín (có gác xép bê tông). Pháp lý: Sổ đỏ chính chủ, pháp lý minh bạch, sẵn sàng cho mọi giao dịch.

Giá: 26 tỷ Diện tích: 122
Địa chỉ tài sản:
Đường Hoàng Hoa Thám, Phường Ngọc Hà, Hà Nội

Đường Hoàng Hoa Thám, Phường Ngọc Hà, Quận Ba Đình, Hà Nội

(địa chỉ cũ)

Các thông tin khác

Mã tin17372381Hướng_Phòng ăncheck
Loại tinCần bánĐường trước nhà3mNhà bếpcheck
Loại BDSNhà trong hẻmPháp lýSổ hồng/ Sổ đỏSân thượngcheck
Chiều ngang---Số lầu7Chổ để xe hơi---
Chiều dài---Số phòng ngủ28Chính chủ---
Hình ảnh

Hình ảnh

HOÀNG HOA THÁM, BA ĐÌNH - 122M² - MT 7.1M - 26 TỶ - CCMN 28 PHÒNG, DOANH THU 150TR/THÁNG
  • HOÀNG HOA THÁM, BA ĐÌNH - 122M² - MT 7.1M - 26 TỶ - CCMN 28 PHÒNG, DOANH THU 150TR/THÁNG - 0
  • HOÀNG HOA THÁM, BA ĐÌNH - 122M² - MT 7.1M - 26 TỶ - CCMN 28 PHÒNG, DOANH THU 150TR/THÁNG - 1
  • HOÀNG HOA THÁM, BA ĐÌNH - 122M² - MT 7.1M - 26 TỶ - CCMN 28 PHÒNG, DOANH THU 150TR/THÁNG - 2
  • HOÀNG HOA THÁM, BA ĐÌNH - 122M² - MT 7.1M - 26 TỶ - CCMN 28 PHÒNG, DOANH THU 150TR/THÁNG - 3
  • HOÀNG HOA THÁM, BA ĐÌNH - 122M² - MT 7.1M - 26 TỶ - CCMN 28 PHÒNG, DOANH THU 150TR/THÁNG - 4
Có thể bạn muốn xem: Bán nhà Ngọc Hà

Phản ánh tin rao vi phạm

Thông tin phản ánh của Quý khách giúp chúng tôi sàn lọc thông tin tốt hơn và loại trừ các nhà môi giới không trung thực. Xin trân trọng cám ơn.


Tôi không muốn xem tin của người đăng này trong vòng: Tất cả các tin của thành viên này sẽ ẩn đi với bạn trong khoảng thời gian bạn đã chọn.
Mã an toàn:

Bất động sản nổi bật

Cần bán Nhà trong hẻm tại Quận Ba Đình

Bán nhà Giang Văn Minh , 110m2 ngay gần mặt phố chỉ 2x

🌹🌹 SIÊU PHẨM GIANG VĂN MINH - TRUNG TÂM BA ĐÌNH + Dt 110m2 - mặt tiền bề thế 6m = 26.9 tỷ == 245tr/m2 NGÕ RỘNG, GẦN MẶT PHỐ, KHU HIẾM NHÀ BÁN, ĐƠN GIÁ TỐT ⭐️VỊ TRÍ ĐẮC ĐỊA: Nhà mặt ngõ rộng, gần Giảng Võ, ...... << Xem chi tiết >>

3m4 tầng6 phòng ngủ
Giá: 26,9 tỷ Diện tích: 110

Phố Giang Văn Minh, Phường Ngọc Hà, Hà Nội

Phố Giang Văn Minh, Phường Kim Mã, Quận Ba Đình, Hà Nội (cũ)

Bán nhà phố Kim Mã, Ba Đình 79m, 6 tầng, mt 5.8m. Giá: 23.5 tỷ

"Bán nhà phố Kim Mã, Ba Đình 79m, 6 tầng, mt 5.8m. Giá: 23.5 tỷ Bán nhà phố Kim Mã, nhà 6 tầng thang máy, công năng đầy đủ, hiệu xuất kinh doanh 60tr/ tháng Diện tích 79m, thiết kế 10 phòng khép kins cho thuê, dòng tiề...... << Xem chi tiết >>

4m6 tầng10 phòng ngủ
Giá: 23,5 tỷ Diện tích: 79

Đường Kim Mã, Phường Giảng Võ, Hà Nội

Đường Kim Mã, Phường Ngọc Khánh, Quận Ba Đình, Hà Nội (cũ)

Bán nhà phố Kim Mã, Ba Đình 79m, 6 tầng, mt 5.8m. Giá: 23.5 tỷ

"Bán nhà phố Kim Mã, Ba Đình 79m, 6 tầng, mt 5.8m. Giá: 23.5 tỷ Bán nhà phố Kim Mã, nhà 6 tầng thang máy, công năng đầy đủ, hiệu xuất kinh doanh 60tr/ tháng Diện tích 79m, thiết kế 10 phòng khép kins cho thuê, dòng tiề...... << Xem chi tiết >>

4m6 tầng10 phòng ngủ
Giá: 23,5 tỷ Diện tích: 79

Đường Kim Mã, Phường Giảng Võ, Hà Nội

Đường Kim Mã, Phường Ngọc Khánh, Quận Ba Đình, Hà Nội (cũ)

💥💥 CƠ HỘI HIẾM GẦN HỒ ĐẦM TRÒN – NHÀ ĐẸP 5 TẦNG – NGÕ 135 ĐỘI CẤN – BA ĐÌNH 💎

📍 Vị trí kim cương trung tâm Ba Đình – gần Hồ Đầm Tròn, Lăng Bác, Tượng đài Lênin, Phủ Chủ tịch 🚗 Khu hành chính – văn hoá của Thủ đô, giao thông cực thuận Nguyễn Chí Thanh – Liễu Giai – Văn Cao – Kim Mã. 🏠 Thông ...... << Xem chi tiết >>

3m5 tầng5 phòng ngủ
Giá: 21,5 tỷ Diện tích: 98

Phố Đội cấn, Phường Ngọc Hà, Hà Nội

Phố Đội cấn, Phường Ngọc Hà, Quận Ba Đình, Hà Nội (cũ)

Bán toà căn hộ dịch vụ ngõ 169 Kim Mã DT 70m, 6 tầng, doanh thu 70 triệu/tháng

- Vị trí cách phố Kim Mã chỉ 30m, ngõ trước nhà gần 3m, thoáng đẹp, gần phố - Nhà xây mới đẹp, nội thất cao cấp, khách mua về chỉ việc ở hoặc khai thác dòng tiền luôn - Sổ đỏ 70m, MT 4.3m vuông vắn - Thiết kế mỗi tầng...... << Xem chi tiết >>

3m6 tầng10 phòng ngủ
Giá: 21,9 tỷ Diện tích: 70

Đường Kim Mã, Phường Ngọc Hà, Hà Nội

Đường Kim Mã, Phường Kim Mã, Quận Ba Đình, Hà Nội (cũ)