Lô đất quá đẹp 100m2 đường QH 5m5 lê Thanh Nghị, chỉ hơn 5ty- sập hầm

Thông tin chi tiết

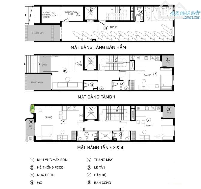
Lô đất mặt tiền Hải Châu đường 5m5 Phạm Văn Bạch. Giá sập hầm 100m² chưa đến 6 tỷ. (Đã lên sẵn bản vẽ thiết kế và thi công trọn gói. Toà căn hộ 6 tầng mới 100% gồm 12p căn hộ cao cấp. Thu nhập 80tr/tháng. Nếu mua thi công trọn gói là 13 tỷ. -------------------- Công ty xây dựng và dịch vụ nhà đất Tứ Chiến Đơn giá thi công xây thô và nhân công hoàn thiện giá tốt nhất Đà Nẵng +Nhà phố,nhà liền kề: giá 3,4tr/m2 +Biệt thự,khách sạn giá từ 3,6tr/m2. - Thi công chìa khóa trao tay +Nhà phố,nhà liền kề:giá từ 5.5tr/m2 đến 6tr/m2 +Biệt thự,khách sạn giá từ 6tr/m2 đến 7tr/m2

Giá: 5,62 tỷ Diện tích: 100
Địa chỉ tài sản:
Đường Lê Thanh Nghị, Phường Hòa Cường, Đà Nẵng

Đường Lê Thanh Nghị, Phường Hòa Cường Nam, Quận Hải Châu, Đà Nẵng

(địa chỉ cũ)

Các thông tin khác

Mã tin17120129Hướng_Phòng ăncheck
Loại tinCần bánĐường trước nhà5,5mNhà bếpcheck
Loại BDSĐất thổ cư, đất ởPháp lýSổ hồng/ Sổ đỏSân thượngcheck
Chiều ngang5mSố lầu---Chổ để xe hơicheck
Chiều dài20mSố phòng ngủ---Chính chủ---
Hình ảnh

Hình ảnh

Lô đất quá đẹp 100m2 đường QH 5m5 lê Thanh Nghị, chỉ hơn 5ty- sập hầm
  • Lô đất quá đẹp 100m2 đường QH 5m5 lê Thanh Nghị, chỉ hơn 5ty- sập hầm - 0
  • Lô đất quá đẹp 100m2 đường QH 5m5 lê Thanh Nghị, chỉ hơn 5ty- sập hầm - 1
  • Lô đất quá đẹp 100m2 đường QH 5m5 lê Thanh Nghị, chỉ hơn 5ty- sập hầm - 2
  • Lô đất quá đẹp 100m2 đường QH 5m5 lê Thanh Nghị, chỉ hơn 5ty- sập hầm - 3
  • Lô đất quá đẹp 100m2 đường QH 5m5 lê Thanh Nghị, chỉ hơn 5ty- sập hầm - 4
Có thể bạn muốn xem:

Phản ánh tin rao vi phạm

Thông tin phản ánh của Quý khách giúp chúng tôi sàn lọc thông tin tốt hơn và loại trừ các nhà môi giới không trung thực. Xin trân trọng cám ơn.


Tôi không muốn xem tin của người đăng này trong vòng: Tất cả các tin của thành viên này sẽ ẩn đi với bạn trong khoảng thời gian bạn đã chọn.
Mã an toàn:

Bất động sản nổi bật

Cần bán Đất thổ cư, đất ở tại Quận Hải Châu

🔥🔥BÁN GẤP LÔ ĐẤT KIỆT Ô TÔ TIỂU LA - HOÀ CƯỜNG BẮC🔥🔥

🔥🔥CỰC HIẾM CÒN SÓT LÔ ĐẤT HIẾM SÁT MẶT TIỀN, Ô TÔ ĐẬU ĐỖ🔥🔥 💰Giá chỉ 4.85 tỷ - thương lượng chính chủ 📍Mô tả: + Vị trí ngay sát mặt tiền Tiểu La. + DT: 61m2, ngang 5m. + Đường nhựa 5m, ô tô đậu đỗ tránh nh...... << Xem chi tiết >>

5m
Giá: 4,85 tỷ Diện tích: 61 KT: 5x12m

Đường Tiểu La, Phường Hòa Cường, Đà Nẵng

Đường Tiểu La, Phường Hòa Cường Bắc, Quận Hải Châu, Đà Nẵng (cũ)

📌📌📌LÀM VIỆC TRỰC TIẾP GIÁ TỐT !!! Bán lô mặt tiền hà huy giáp

12🌹🍀Chào bán Lô đất đường 5m5 lề 3m Hà Huy Giáp song song trục chính Phan Đăng Lưu - phường Hoà Cường🌹🍀 DT ~60m ngang 4m1 vuông vức Giá: 6 tỷ 250 tl ms8888 ☎ ☎ ☎QUÝ KHÁCH HÀNG LIÊN HỆ TRỰC TIẾP SỐ ĐIỆN THOẠI THỜI...... << Xem chi tiết >>

5,5m
Giá: 6,25 tỷ Diện tích: 60

Đường Hà Huy Giáp, Phường Hòa Cường, Đà Nẵng

Đường Hà Huy Giáp, Phường Hòa Cường Nam, Quận Hải Châu, Đà Nẵng (cũ)

Bán lô đất đường HÀ HUY GIÁP, HẢI CHÂU gần đường phan đăng lưu trung tâm sầm uất

Bán lô đất đường Hà Huy Giáp, Hải Châu. gần đường lớn phan đăng lưu Diện tích: 57m². ngang (4,1m x 14m nở hậu đẹp) hướng tây bắc. Đường 5,5m lề 3m Vị trí gần Lê Thanh Nghị, Phan Đăng Lưu, Gần 3 trường Đh Ngoại Ngữ, Kiế...... << Xem chi tiết >>

5,5m
Giá: 6,25 tỷ Diện tích: 57 Hướng: Tây Bắc

Đường Hà Huy Giáp, Phường Hòa Cường, Đà Nẵng

Đường Hà Huy Giáp, Phường Hòa Cường, Quận Hải Châu, Đà Nẵng (cũ)

"🌿 Bán đất tặng nhà C4 – Nguyễn Văn Tố, Thuận Phước, Hải Châu

"🌿 Bán đất tặng nhà C4 – Nguyễn Văn Tố, Thuận Phước, Hải Châu DT: 4,5 x 12m = 54m² Hướng: Bắc Đường: 5,5m Khu dân cư trung tâm, thuận tiện xây mới để ở hoặc cho thuê 💰 Giá: 5,2 tỷ" ........................... << Xem chi tiết >>

5,5m
Giá: 5,2 tỷ Diện tích: 54 KT: 4,5x12mHướng: Bắc

Đường Nguyễn Văn Tố, Phường Hải Châu, Đà Nẵng

Đường Nguyễn Văn Tố, Phường Thuận Phước, Quận Hải Châu, Đà Nẵng (cũ)

🏡 BÁN ĐẤT SÁT MẶT TIỀN TIỂU LA – VỊ TRÍ ĐẸP KHÓ TÌM 🏡

🏡 BÁN ĐẤT SÁT MẶT TIỀN TIỂU LA – VỊ TRÍ ĐẸP KHÓ TÌM 🏡 (HC05-005) 📍 Vị trí: Ngay sát mặt tiền đường Tiểu La – đi lại thuận tiện, tiềm năng tăng giá rõ rệt. 📐 Diện tích: 61m², ngang 5m vuông vức, chuẩn chỉnh để xây...... << Xem chi tiết >>

5m
Giá: 4,85 tỷ Diện tích: 60 KT: 5x12m

Đường Tiểu La, , Đà Nẵng

Đường Tiểu La, , Quận Hải Châu, Đà Nẵng (cũ)