Căn nhà chia đôi mảnh đất vuông thành hai tam giác, tưởng bất hợp lý mà cực lý tưởng
Cập nhật: 07:48 09/10/2025
Tọa lạc trên mảnh đất vuông vức, ngôi nhà mang hình dáng “không ai nghĩ đến” đang viết lại định nghĩa về không gian sống đô thị. Thiết kế Two Triangles House thể hiện tư duy kiến trúc tinh giản và sáng tạo, nơi hình khối sắp đặt như trò chơi hình học đầy tính toán mà vẫn nhẹ nhàng, thoáng đãng.
Không gian sống trong Two Triangles House tổ chức theo logic tam giác
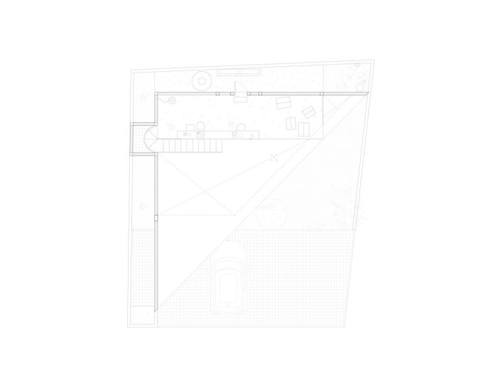
Xuất phát từ một khu đất góc phố hình chữ nhật rộng 150m2, nhóm thiết kế từ dua studio đã đưa ra quyết định bất ngờ đó là chia khu đất theo đường chéo, tạo thành hai hình tam giác có diện tích gần bằng nhau. Một hình được dành cho khối nhà ở, hình còn lại trở thành sân vườn và không gian mở.

Two Triangles House sở hữu thiết kế độc lạ với hai khối hình tam giác

Mái ngói đỏ truyền thống tạo điểm nhấn trên nền tường trắng tối giản, mở ra khoảng sân tam giác đóng vai trò "lá phổi xanh" cho toàn bộ công trình

Thiết kế mái nghiêng che nắng hiệu quả, đồng thời giúp công trình mở rộng theo chiều ngang một cách nhẹ nhàng
Sự phân chia trong thiết kế Two Triangles House mang tính hình học, đồng thời là chiến lược tổ chức không gian sống đầy tính toán. Toàn bộ không gian chức năng được gom vào một tam giác duy nhất, tạo thành mặt bằng lệch tâm nhưng hợp lý và giàu nhịp điệu. Trong khi đó, khoảng sân còn lại đóng vai trò như “lá phổi xanh”, giúp ngôi nhà được thông gió chéo và mở ra các hướng nhìn phong phú.

Hành lang dọc mặt kính tạo trục thị giác liền mạch, kết nối không gian sinh hoạt bên trong với khu vườn bên ngoài

Khung nhôm mảnh và kính trong suốt giúp ánh sáng len lỏi khắp ngóc ngách, tăng cường kết nối thị giác với sân vườn

Mọi hoạt động sống đều hướng về thiên nhiên, tạo không gian giao tiếp mềm mại giữa con người và cảnh quan
Tầng trệt của Two Triangles House bố trí không gian sinh hoạt chung với bếp, phòng ăn, khu vui chơi. Tất cả liên kết với nhau bằng một hành lang mở chạy dọc theo vách kính lớn, tạo nên trục thị giác xuyên suốt hướng ra vườn. Tầng lửng phía trên là nơi đặt các không gian riêng tư.
Nhờ hình khối tam giác, từng khu vực như được tách riêng nhẹ nhàng, vừa đảm bảo không gian sinh hoạt riêng, vừa duy trì sự kết nối thông qua ánh sáng và gió tự nhiên. Giải pháp thiết kế này là sự lựa chọn khôn ngoan giúp giải quyết tốt bài toán nhà nhỏ hẹp ở khu vực đô thị.

Cầu thang bê tông không tay vịn truyền thống được thay bằng tay nắm kim loại thanh mảnh, tăng tính hiện đại và giữ tinh thần tối giản

Không gian mở được tổ chức khéo léo giữa các bức vách bê tông, tạo sự chuyển tiếp mềm mại giữa trong và ngoài

Nhờ trần nghiêng và cửa kính lớn, ánh sáng tự nhiên tràn vào không gian sống mọi thời điểm trong ngày

Sự giao thoa giữa trần nghiêng và ô cửa tròn mang lại “chất thơ” riêng biệt cho thiết kế Two Triangles House
Ánh sáng tự nhiên và vật liệu mộc trong thiết kế Two Triangles House
Không cần đến những vật liệu đắt tiền hay chi tiết trang trí cầu kỳ, Two Triangles House gây ấn tượng bởi vẻ đẹp tinh tế đến từ những điều tối giản. Chỉ cần tường trắng mỏng, sàn bê tông và gỗ tông ấm đã có thể tạo nên không gian sống đầy sức hút.
Chính cách phối hợp vật liệu đặc biệt đã tạo nên bản sắc riêng cho Two Triangles House. Tường trắng giúp không gian rộng rãi hơn, đồng thời đóng vai trò phản chiếu ánh sáng. Sàn bê tông thô mang lại cảm giác mộc mạc nhưng không lạnh lẽo, nhờ có sự bù đắp từ sắc ấm và vân gỗ tự nhiên trên một số hạng mục nội thất.

Gỗ tông ấm ở tầng lửng đóng vai trò cân bằng cảm giác “lạnh” của tường trắng và sàn bê tông, giúp không gian sống trở nên hài hòa hơn

Mái ngói truyền thống cùng tay vịn mảnh giúp cầu thang trở thành điểm chuyển tiếp nhẹ nhàng giữa kiến trúc bên ngoài và nội thất bên trong

Sự kết hợp giữa vật liệu thô như bê tông và gỗ ấm được xử lý chỉn chu, mang lại cảm giác vừa mộc mạc vừa tinh tế

Không gian tầng lửng đơn giản nhưng sáng thoáng nhờ ánh sáng tự nhiên từ khe mái và giếng trời cuối hành lang

Cầu thang xoắn là điểm nhấn hiếm hoi có đường cong trong công trình đầy những đường chéo mạnh mẽ
Kiến trúc sư đã khai thác tối đa các nguồn lấy sáng tự nhiên thông qua mái nghiêng, giếng trời và cửa sổ cao sát trần. Những khe sáng này cung cấp ánh sáng suốt ngày, đồng thời tạo nên hiệu ứng “mở rộng bầu trời”, giúp ngôi nhà nhỏ như tỏa sáng giữa thành phố đông đúc.
Nhờ ánh sáng và vật liệu mộc, Two Triangles House mang đến cảm giác sống chân thật và gần gũi. Không khí trong lành, ánh sáng vừa đủ và vật liệu thân thiện đã nâng tầm trải nghiệm sống trong ngôi nhà vốn chỉ gói gọn diện tích 79m2, đây chính là minh chứng cho thiết kế “vừa đủ” có thể tạo nên không gian sống trọn vẹn.

Bề mặt sơn nhám sáng màu giúp phản chiếu ánh sáng đều khắp không gian mà không cần sử dụng thêm nhiều đèn điện

Mái nghiêng phối hợp cùng hệ tường cao và ô sáng thẳng đứng tạo cảm giác “mở rộng lên trời” đúng với tinh thần thiết kế Two Triangles House

Cửa sổ tròn đặt tại vị trí mái nghiêng, tăng khả năng lấy sáng tự nhiên và tạo đường nét mềm mại cho không gian sống

Dãy hành lang dài bên hông nhà lợp mái kính mờ, giúp ánh sáng len lỏi suốt ngày nhưng vẫn giữ được sự riêng tư cần thiết






Các bản vẽ thiết kế Two Triangles House
Two Triangles House không cố gắng phô trương thiết kế kiến trúc. Thay vào đó, công trình này nhẹ nhàng đặt ra câu hỏi: “Điều gì thực sự cần thiết để một ngôi nhà trở nên đáng sống?”. Câu trả lời nằm trong hình dạng không đối xứng, những khoảng thở tự nhiên và tư duy thiết kế dám khác biệt.
Nguồn: Sưu tầm
Ý kiến bạn đọc (0)
Tin cũ hơn
- “1gian” – Nhà ngói đỏ bên sông mộc mạc, gần gũi giữa miền quê Nghệ An (06/10/2025)
- Chỉ dùng bê tông và gỗ, nhà 64m2 vẫn chạm tới vẻ đẹp nguyên bản nhất của thiên nhiên (26/09/2025)
- Bưng Riềng House – Nhà 1 tầng ẩn mình giữa rừng, giao thoa kiến trúc và thiên nhiên (25/09/2025)
- Căn nhà một tầng đẹp nhẹ nhàng tại Quảng Nam: Món quà của chàng rể dành cho mẹ vợ (19/09/2025)
- Nhà Xuân Tây: Chốn nghỉ dưỡng gạch mộc mái ngói giữa làng quê Đồng Nai (17/09/2025)
Nhà ống
Biệt thự
Chung cư
Văn phòng