Chỉ dùng bê tông và gỗ, nhà 64m2 vẫn chạm tới vẻ đẹp nguyên bản nhất của thiên nhiên
Cập nhật: 07:40 26/09/2025
House Ona nằm bên dòng suối El Pescado, trong khu Villa Garibaldi, Argentina - nơi thiên nhiên vẫn giữ được sự nguyên sơ hiếm có. Ngôi nhà được hình thành từ những mong muốn đời thường nhất: nghe tiếng mưa rơi, ngắm trăng qua khung cửa sổ, nhâm nhi mate dưới mái hiên…
Thiết kế House Ona hòa quyện giữa bối cảnh thiên nhiên và kiến trúc bản địa
House Ona không xuất phát từ những khái niệm kiến trúc lý tưởng, mà được hình thành từ các quyết định gần gũi và thiết thực. Cụ thể, giữ nguyên phần lớn thảm thực vật hiện có, xây dựng bằng nguồn lực địa phương, thi công nhanh gọn để giảm thiểu tác động đến môi trường.

House Ona tọa lạc yên bình bên dòng suối El Pescado, trong khu Villa Garibaldi, Argentina

Quá trình xây dựng House Ona thể hiện sự tôn trọng thiên nhiên, hạn chế can thiệp vào cảnh quan xung quanh

Thời gian thi công House Ona rất ngắn và chủ yếu sử dụng nguồn nhân lực địa phương
Đặc biệt, công trình được nâng cao 50cm so với mặt đất bằng hệ cọc bê tông. Đây là giải pháp hiệu quả giúp House Ona tránh ngập mùa mưa, đồng thời bảo tồn sinh thái vùng đệm ven suối.
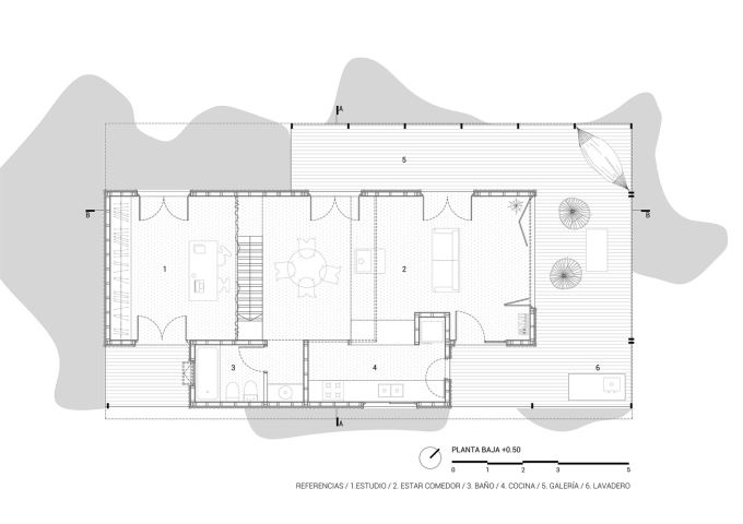
Thiết kế nhà lấy cảm hứng từ kiến trúc nông thôn bản địa như mái đầu hồi bất đối xứng và khoảng hiên nhà rộng. Đây là những yếu tố quen thuộc trong các công trình trang trại và nhà “chorizo” truyền thống.
Hệ hiên hình chữ C bao quanh ba mặt nhà, đóng vai trò như lớp đệm khí hậu, che chắn mưa nắng gay gắt của vùng Tây Bắc Argentina. Hướng mở Đông Bắc vừa đón sáng tự nhiên vừa giúp lưu thông không khí hiệu quả, hạn chế tối đa việc sử dụng điều hòa, thể hiện rõ tinh thần sống thuận tự nhiên của House Ona.

Ý tưởng thiết kế House Ona lấy cảm hứng từ kiến trúc bản địa

Ngôi nhà sử dụng hệ cọc bê tông để nâng khối nhà cách mặt đất 50cm

Giải pháp nâng cao khối nhà giúp House Ona tránh ngập hiệu quả dù nằm ngay bên suối

House Ona có hiên nhà hình chữ C bao quanh khắp ba mặt ngôi nhà

Khoảng hiên rộng thoáng trở thành lớp đệm ngăn nắng nóng, giúp House Ona thích nghi tốt với thời tiết khắc nghiệt tại Argentina

Gia chủ đặt thêm bàn ghế ở hiên nhà, tạo không gian thư giãn dễ chịu cho các thành viên trong gia đình
House Ona gây ấn tượng với hình khối tối giản, vật liệu mộc mạc
Hình khối kiến trúc của House Ona được giản lược đến mức tối thiểu, đó là một hình hộp chữ nhật nổi nhẹ trên nền vườn tự nhiên. Nhưng chính sự tiết chế đó lại tạo nên cảm giác bình yên, vững chãi và tĩnh lặng.
Vật liệu sử dụng là sự pha trộn giữa gỗ bạch đàn đỏ cho kết cấu chính và vật liệu phenolic hoàn thiện bên trong, giúp không gian vừa ấm áp vừa có chiều sâu thị giác. Phần mái hiên kéo dài che chắn ánh nắng trực tiếp, đồng thời tạo cảm giác bao bọc thân thuộc.

Gỗ bạch đàn đỏ tạo nên kết cấu chính vững chắc cho thiết kế nhà House Ona
Bê tông trong công trình được xử lý bề mặt vân gỗ, làm mềm đi sự khô cứng thường thấy của vật liệu công nghiệp. Các ô cửa kính lớn kết nối không gian bên trong với khu vườn bên ngoài, vừa đón sáng mềm mại vừa mở rộng tầm nhìn thiên nhiên ở nhiều góc độ. Những lớp tường dày được tính toán kỹ để cách nhiệt hiệu quả, khiến không gian bên trong luôn mát mẻ vào mùa hè và ấm áp khi đông về.
Dù diện tích sàn chỉ vỏn vẹn 64m2, không gian sống vẫn được tổ chức linh hoạt, với các khu bếp, phòng tắm, hiên nhà chia sẻ chung một mái che. Các tấm rèm ngăn linh hoạt đóng vai trò như “cánh gà sân khấu”, mở ra hoặc thu lại tùy theo nhu cầu sinh hoạt.

Bê tông được xử lý vân gỗ, đây là sự can thiệp tinh tế làm mềm chất công nghiệp, đồng thời giữ nét mộc mạc tự nhiên

Các khu vực chức năng trong House Ona kết nối liền mạch, giúp nắng gió tự nhiên dễ dàng len lỏi đến mọi ngóc ngách bên trong

Những khoảng xanh được đan cài hợp lý trong House Ona, vừa tạo điểm nhấn thẩm mỹ vừa thanh lọc không khí và làm mát tự nhiên

Chất liệu hoàn thiện mộc mạc mang đến bầu không khí ấm cúng, phù hợp với đường nét kiến trúc bản địa

Sự tối giản trong bố cục không làm giảm tính tiện nghi, ngược lại còn mở ra cảm giác thoáng đãng và thư thái

Sự kết hợp giữa gỗ và kính tạo nên bầu không khí vừa ấm cúng, vừa khoáng đạt và đậm chất địa phương

Không gian làm việc sở hữu hai mặt thoáng nhờ tận dụng chất liệu kính, mở tầm nhìn ra khung cảnh thiên nhiên xung quanh

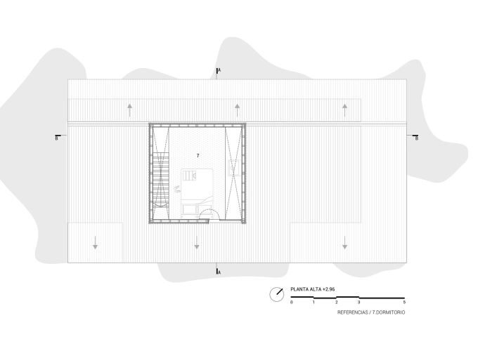
Tầng lửng của House Ona bố trí phòng ngủ, tách biệt rõ ràng giữa không gian chung và khu vực nghỉ ngơi riêng tư







Các bản vẽ thiết kế House Ona
House Ona là một ví dụ điển hình cho cách tiếp cận kiến trúc hiện đại nhưng không tách rời yếu tố bản địa, không phô trương hình khối hay kỹ thuật mà chạm tới chiều sâu của ký ức và đời sống thường nhật. Thiết kế này còn mang đến thông điệp về sự kết nối với thiên nhiên, tạo không gian sống bền vững trong bối cảnh đô thị hóa.
Nguồn: Sưu tầm
Ý kiến bạn đọc (0)
Tin cũ hơn
- Bưng Riềng House – Nhà 1 tầng ẩn mình giữa rừng, giao thoa kiến trúc và thiên nhiên (25/09/2025)
- Căn nhà một tầng đẹp nhẹ nhàng tại Quảng Nam: Món quà của chàng rể dành cho mẹ vợ (19/09/2025)
- Nhà Xuân Tây: Chốn nghỉ dưỡng gạch mộc mái ngói giữa làng quê Đồng Nai (17/09/2025)
- Cặp vợ chồng mua lại nhà cấp 4 cũ, chi 700 triệu cải tạo làm nơi nghỉ dưỡng mùa hè (26/08/2025)
- Nhà phố hiện đại che nắng bằng tường lỗ thoáng và gạch bông gió đẹp mắt (07/08/2025)
Nhà ống
Biệt thự
Chung cư
Văn phòng