Flow House: Ngôi nhà thiết kế nhỏ gọn, tối đa hóa luồng không khí tự nhiên
Cập nhật: 08:00 02/04/2025
Đúng như tên gọi, Flow House nổi bật bởi dòng chảy đối lưu không khí trong nhà. Luồng lưu thông chính được đặt ở vị trí trung tâm và chạy từ phía trước ra phía sau. Vì thế, ngay khi bước chân vào ngôi nhà 1 tầng này, bạn sẽ cảm nhận được dòng chảy không khí lưu thông một cách hoàn hảo, tạo nên sự hài hòa với kiểu khí hậu nhiệt đới đặc trưng tại Chiang Mai, Thái Lan.

Nhà Flow House là tổ ấm của một gia đình tại Chiang Mai, Thái Lan
Thiết kế nhà nhỏ gọn thích ứng với khí hậu của địa phương
Flow House được xây dựng trên diện tích 150m2 trong một khu đất tại Chiang Mai, Thái Lan. Khu đất này nằm giữa các bất động sản đã hoàn thiện. Bởi vậy gia chủ mong muốn có một ngôi nhà một tầng nhỏ gọn với không gian liền mạch, thông thoáng, mang đến sự thoải mái cho cô và cha mẹ tận hưởng cuộc sống khi nghỉ hưu.

Ngôi nhà một tầng được xây dựng trên diện tích 150m2 nằm giữa các ngôi nhà đã được hoàn thiện
Để đáp ứng yêu cầu của gia chủ, đội ngũ kiến trúc sư đã đưa ra giải pháp thiết kế ngôi nhà Flow House sao cho đảm bảo lưu thông không khí tốt nhất giữa khu vực trong nhà và ngoài trời. Ngôi nhà cần có sự hài hòa với khí hậu nhiệt đới và môi trường xung quanh nhưng vẫn đảm bảo được sự riêng tư cho gia chủ.

Ngôi nhà được thiết kế nhỏ gọn, phù hợp với kiểu khí hậu nhiệt đới tại địa phương
Theo đó, để hài hòa với kiểu khí hậu nhiệt đới của Thái Lan, đội ngũ kiến trúc sư tập trung thiết kế ngôi nhà mà tất cả các phòng, các khu vực trong nhà đều được hưởng lợi từ thông gió chéo. Thông gió chéo giữa các phòng là giải pháp quan trọng giúp cho ngôi nhà tối đa hóa luồng không khí tự nhiên và luôn có được sự mát mẻ.

Giải pháp thông gió chéo giữa các phòng được đưa vào thiết kế để để ngôi nhà tối ưu được luồng khí tự nhiên

Bản vẽ ngôi nhà Flow House được các kiến trúc sư đưa ra nhằm hiện thực hóa yêu cầu, mong muốn của gia chủ
Flow House được thiết kế để tăng cường sự thoải mái về nhiệt và hiệu quả năng lượng phù hợp với kiểu khí hậu, môi trường của Chiang Mai. Đây cũng là chiến lược quan trọng để ứng phó với sự khắc nghiệt về khí hậu, nhất là trong những thời điểm nắng nóng.

Flow House được thiết kế để ứng phó với điều kiện khí hậu nắng nóng của địa phương
Ngoài ra, đội ngũ nhà thiết kế cũng đưa ra giải pháp thiết kế mặt tiền hài hòa với môi trường và cộng đồng xung quanh bằng cách sử dụng quy mô và vật liệu phù hợp để giảm tác động trực quan trong khi vẫn duy trì được sự an toàn và kết nối chặt chẽ với khu vườn cũng như cảnh quan xung quanh.

Lựa chọn quy mô và vật liệu phù hợp trong thiết kế mặt tiền là giải pháp quan trọng để tạo sự hài hòa với môi trường xung quanh

Chất liệu mái ngói với tác dụng cách nhiệt cũng giúp hạn chế nắng nóng cho ngôi nhà
Đảm bảo tăng cường lưu thông không khí
Trong quá trình thiết kế nhà Flow House, lưu thông được xác định là yếu tố chính để đạt được mục tiêu thích ứng với khí hậu trong vùng, tạo cho ngôi nhà luôn có được sự thoáng đãng, mát mẻ.

Lưu thông không khí được xác định là yếu tố chính trong nhà Flow House
Lưu thông trong nhà Flow House chính là không gian bán ngoài trời tạo sự chuyển tiếp giữa các phòng và thiên nhiên bên ngoài. Khu vực này giúp tối ưu không gian mà không cần thêm các yếu tố khác và cũng không đòi hỏi bảo trì quá nhiều. Bằng giải pháp này, chất lượng bầu không khí và không gian được nâng cao trong khi các chức năng thiết kế khác vẫn được bảo tồn.

Không gian bán ngoài trời với sự chuyển tiếp giữa không gian bên ngoài và trong nhà
Yếu tố tạo nên luồng lưu thông chính trong Flow House được đặt ở trung tâm của ngôi nhà và chạy từ phía trước ra phía sau. Thiết kế hành lang thẳng tạo sự riêng tư theo chiều ngang. Các không gian riêng tư của ngôi nhà được bố trí dần về phía sau.

Thiết kế hành lang thẳng giúp luồng khí lưu thông từ phía trước ngôi nhà ra phía sau khu riêng tư
Dọc theo lối đi là bức tường bê tông trung tâm. Đây là yếu tố chủ đạo mang lại sự riêng tư trong khi vẫn cho phép không khí lưu thông hiệu quả. Giải pháp thiết kế này giúp gia chủ được tận hưởng bầu không khí trong lành và sức hấp dẫn về mặt thị giác của ánh sáng mặt trời hắt vào các khối bê tông, đồng thời vẫn đảm bảo được sự riêng tư trong không gian sống.

Dọc hành lang là bức tường bê tông có ô thông gió mang lại bầu không khí trong lành cho toàn bộ không gian

Ánh sáng hắt vào những khối bê tông tạo nên hiệu ứng thị giác hấp dẫn

Ở bất cứ không gian nào cũng cảm nhận được bầu không khí mát mẻ lưu thông qua các ô thông gió

Khu vực sinh hoạt chung rộng rãi và thoáng mát

Phòng ăn kết nối với bên ngoài qua cửa kính rộng

Dòng chảy không khí cũng được đối lưu đến phòng ngủ thông qua bức tường bê tông có ô thoáng

Không gian thông thoáng nhưng vẫn đảm bảo được sự riêng tư cho gia chủ
Flow House mang đến cho gia chủ không gian sống đáng mơ ước. Dù nằm trong một khu vực có diện tích tương đối hẹp nhưng bằng giải pháp thiết kế thông minh, ưu tiên dòng chảy không khí, ngôi nhà vẫn có sự thoáng mát ở mọi không gian. Giải pháp này cũng rất phù hợp để áp dụng cho thiết kế nhà một tầng tại Việt Nam.





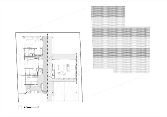
Mặt bằng ngôi nhà Flow House
Nguồn: Sưu tầm
Ý kiến bạn đọc (0)
Tin mới hơn
- Căn nhà chia đôi mảnh đất vuông thành hai tam giác, tưởng bất hợp lý mà cực lý tưởng (Hôm qua)
- “1gian” – Nhà ngói đỏ bên sông mộc mạc, gần gũi giữa miền quê Nghệ An (06/10/2025)
- Chỉ dùng bê tông và gỗ, nhà 64m2 vẫn chạm tới vẻ đẹp nguyên bản nhất của thiên nhiên (26/09/2025)
- Bưng Riềng House – Nhà 1 tầng ẩn mình giữa rừng, giao thoa kiến trúc và thiên nhiên (25/09/2025)
- Căn nhà một tầng đẹp nhẹ nhàng tại Quảng Nam: Món quà của chàng rể dành cho mẹ vợ (19/09/2025)
Tin cũ hơn
- Trúc Lâm Anh Retreat - Chốn bình yên giữa Tây Nguyên đại ngàn (15/03/2025)
- Nhà 1 tầng mái dốc, khuôn viên phân cách riêng biệt với khu vực bên ngoài (12/03/2025)
- Rose House - Khoảng lùi cho không gian sống đúng nghĩa (10/03/2025)
- Nhà theo phong cách Muji nằm ngay bên bờ sông yên tĩnh để tận hưởng cuộc sống mơ ước (04/03/2025)
- Khám phá “ngôi nhà mặt trời” dành cho cặp vợ chồng trẻ ở Nhật Bản (25/02/2025)
Nhà ống
Biệt thự
Chung cư
Văn phòng