A House in the Farm: Biệt thự 2 tầng giữa vườn dừa mang tinh thần nghỉ dưỡng
Cập nhật: 07:45 07/10/2025
Giữa vùng ven đô Coimbatore rợp bóng dừa xanh, có một căn biệt thự lặng lẽ hòa mình vào thiên nhiên như thể đã xây dựng từ rất lâu. Đó là A House in the Farm - nơi trú ẩn tinh tế, giản dị nhưng đủ đầy, hiện đại. Ở đó, ánh sáng, gió trời và vật liệu thô mộc cùng tạo nên không gian sống êm dịu đầy sức hút.
Thiết kế A House in the Farm chú trọng sự kết nối và thông gió tự nhiên
Điểm nổi bật nhất của A House in the Farm là sự liền mạch trong tổ chức không gian. Thay vì phân chia cứng nhắc, kiến trúc sư đã lựa chọn bố cục mở, xoay quanh một khoảng sân trung tâm. Khoảng đệm này đóng vai trò như “lá phổi xanh” đưa ánh sáng tự nhiên và không khí mát lành lan tỏa đến từng ngóc ngách trong nhà.

A House in the Farm tọa lạc tại thành phố Coimbatore, bang Tamil Nadu, miền nam Ấn Độ

A House in the Farm được xây dựng trên một lô đất rộng, xung quanh có nhiều cây dừa lớn

Thiết kế mặt tiền gây chú ý với hình khối chéo ấn tượng, cổng đục lỗ và hệ hàng rào thanh mảnh vừa đảm bảo riêng tư vừa kết nối trong - ngoài

Khoảng sân vườn rộng thoáng là điểm nhấn trung tâm của A House in the Farm
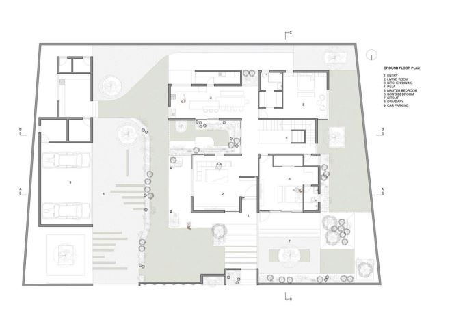
Không gian sinh hoạt chung như phòng khách, bếp và khu vực ăn uống được bố trí mở, hướng tầm nhìn ra khu vườn xanh mướt. Các phòng ngủ được đẩy về hai đầu nhà, đảm bảo sự riêng tư mà vẫn kết nối với thiên nhiên. Giải pháp sử dụng hiên sâu và hành lang thoáng giúp kiểm soát nắng gắt, tạo nên các khoảng nghỉ linh hoạt để con người có thể ngồi ngắm vườn dừa, đọc sách hay đơn giản là hít thở.

Lợi thế về diện tích giúp A House in the Farm thoải mái kết nối khối kiến trúc và thiên nhiên

Những khoảng xanh được đan cài hợp lý, mang đến một không gian nghỉ dưỡng yên bình, hòa hợp với cảnh quan xung quanh

A House in the Farm bố trí nhiều hệ cửa kính lớn, rút ngắn khoảng cách giữa không gian sống bên trong và bên ngoài

Điểm đặc biệt trong A House in the Farm đó là các khu vực chức năng đều bố trí xoay quanh sân vườn trung tâm

Không gian phòng bếp nhận được nhiều ánh sáng tự nhiên từ thiết kế cửa sổ lớn

Thiết kế hiên sâu tạo thêm không gian rộng rãi để gia chủ đặt ghế ngồi ngắm cảnh và thư giãn

Toàn cảnh biệt thự 2 tầng A House in the Farm vào ban đêm
Vật liệu thô mộc tạo nên bầu không khí ấm áp và gần gũi trong A House in the Farm
Ngôn ngữ kiến trúc của A House in the Farm không theo đuổi sự cầu kỳ hay xa hoa. Trái lại, công trình tạo dấu ấn bằng vẻ đẹp nguyên bản của vật liệu và cách xử lý chi tiết đầy tinh tế. Gạch, bê tông thô, kim loại sơn đen và gỗ tông ấm được kết hợp hài hòa, tạo nên bầu không khí vừa mộc mạc, vừa hiện đại.
Vật liệu địa phương được ưu tiên sử dụng để tối ưu chi phí. Gạch đất nung ốp tường tạo nên lớp vỏ mềm mại, kết hợp cùng sàn bê tông mài mát lạnh và các điểm nhấn gỗ ấm cúng. Một công trình không cần phô diễn, bởi chính sự giản đơn và ấm áp đã đủ khiến A House in the Farm trở thành chốn đi về không thể nào quên.

Mặt tiền A House in the Farm kết hợp hài hòa giữa bê tông thô và gạch đất nung

Chất liệu gỗ tự nhiên xuất hiện ở khu vực lối vào nhà, mang đến bầu không khí ấm cúng và thân thuộc

Khung kim loại sơn màu đen tạo điểm nhấn cá tính cho thiết kế mặt tiền A House in the Farm

Nội thất gỗ, rèm vải hai lớp và bộ sofa màu xanh tạo nên bức tranh cân bằng giữa vật liệu và ánh sáng tự nhiên

Gỗ tông ấm xuất hiện từ hệ cửa chớp đến đồ dùng nội thất bên trong mang lại cảm giác gần gũi, thân thiện và ấm áp

Cầu thang gỗ giữa nhà là trục giao thông chính kết nối hai tầng




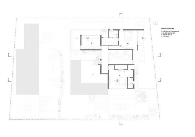
Các bản vẽ thiết kế A House in the Farm
Theo mình đánh giá, thiết kế A House in the Farm đã thể hiện tốt triết lý “less is more” trong kiến trúc hiện đại. Không chạy theo hình thức, công trình này chọn cách sống hòa hợp với thiên nhiên, ưu tiên trải nghiệm sống của con người. Giữa đô thị đông đúc, một căn biệt thự như thế không chỉ là nơi ở, mà là nơi chữa lành.
Nguồn: Sưu tầm
Ý kiến bạn đọc (0)
Tin cũ hơn
- Biệt thự hiện đại biến sân trung tâm thành “trái tim” kết nối 3 thế hệ gia đình (03/10/2025)
- Kiến trúc sư “hồi sinh” nhà cũ nát thành không gian 500m2 triệu view bên bờ biển (30/09/2025)
- Villa Fuji - “Ẩn mình” giữa phố nhưng không tách rời thiên nhiên (24/09/2025)
- Brighton Villa: Nơi công việc và cuộc sống cùng chạm tới sự cân bằng (22/09/2025)
- OM House - Kiến Trúc Hiện Đại Đối Thoại Cùng Vật Liệu (20/09/2025)
Tin nhiều người đọc
- Nhà một tầng thiết kế kiểu Ý rất đáng cho bạn tham khảo
- Căn biệt thự gỗ đẹp như bước ra từ phim Hàn Quốc cách Hà Nội chỉ hơn 1 giờ lái xe
- Gia chủ Hà Nội lấy cảm hứng sửa nhà từ khúc gỗ bạn tặng
- Tham khảo 10 mẫu biệt thự hiện đại, chi phí xây dựng dưới 1,5 tỷ đồng
- Căn nhà 2 tầng tràn ngập cây xanh ai nhìn cũng mê đắm
Nhà ống
Nhà cấp 4
Chung cư
Văn phòng