Biệt thự hiện đại biến sân trung tâm thành “trái tim” kết nối 3 thế hệ gia đình
Cập nhật: 07:56 03/10/2025
Nằm trên trục đường Mae Rim, tỉnh Chiang Mai, PSNK House không phải là một ngôi biệt thự thông thường. Trên nền đất 600m2, công trình là nơi 2 gia đình cùng chung sống trong một không gian song lập, tôn vinh sự gắn bó của 3 thế hệ nhưng vẫn đảm bảo riêng tư cần thiết cho từng gia đình.
Giải bài toán không gian cho 2 gia đình sống chung
PSNK House được tổ chức thành 3 phần: khu quảng trường (gara và sân ngoài trời), sân trung tâm (tiếp khách, học tập, ăn uống) và khu vực hậu trường (bếp, khu giặt phơi, phòng giúp việc).
2 khối nhà được chia tách bởi những vách tường đặc và hệ lam gỗ có thể xoay mở: một dành cho cha mẹ và người con trai, một dành cho người con gái cùng gia đình nhỏ. Khi cần riêng tư, các không gian này có thể được “đóng lại” thành 2 căn hoàn toàn độc lập. Nhưng nếu gia đình có sự kiện hay đơn giản chỉ là bữa tối ấm cúng, chỉ cần mở các lam gỗ, PSNK House lập tức trở thành một không gian mở chung, linh hoạt và gắn kết.

PSNK House được xây dựng cho 2 gia đình cùng sinh sống

Thiết kế mặt tiền ấn tượng với những hình khối vuông vắn, độc lập

Sân trong đóng vai trò trung tâm kết nối giữa các khu vực trong nhà
Thiết kế mở ra thiên nhiên, đóng lại nắng gắt
Tọa lạc tại khu vực có thể nhìn thẳng ra đỉnh Doi Suthep phía Tây – một điểm ngắm cảnh đẹp nhưng đón nắng chiều gay gắt, ngôi nhà được thiết kế với loạt giải pháp đặc biệt để cân bằng giữa tầm nhìn và kiểm soát nhiệt.
Theo đó, 6 cửa lam gỗ được đặt trước mặt tiền để đón gió tự nhiên từ hướng Đông Bắc và hạn chế ánh nắng trực tiếp. Bên trong, các lối di chuyển chính được bố trí sát sân trong – nơi trồng cỏ Malaysia và cây táo tàu Ấn Độ – giúp không gian luôn dịu mát và thoáng đãng, ngay cả khi đóng cửa.

Hệ cửa lam gỗ giúp cản nắng và đảm bảo riêng tư…

…khi mở ra thì hỗ trợ thông gió và tạo tầm nhìn xuyên suốt

KTS sử dụng hệ khung gỗ dài 1m kết hợp ống thép 9mm để giữ khoảng cách đều và chắc chắn
Khu sân trung tâm được bao quanh bởi 3 mặt chức năng, cho phép ánh sáng và cây xanh xuất hiện ở mọi không gian sử dụng trong nhà. Bên cạnh đó, phòng ăn – khu vực được coi là “trái tim” của ngôi nhà – còn được bố trí như một khối đôi, nối liền 2 nhánh nhà, kéo dài 5m theo chiều ngang nhằm tăng tính kết nối mà không làm mất đi tính riêng biệt.

Mỗi khối nhà được thiết kế với những chức năng riêng biệt, duy trì kết nối mà vẫn đủ riêng tư

Lối đi với tranh treo tường tạo cảm giác như một bảo tàng nghệ thuật

Khu vực ăn uống chung hưởng trọn ánh sáng mặt trời ấm áp
Giải pháp vật liệu tạo điểm nhấn độc đáo
Một điểm đặc biệt trong PSNK House là phòng khách được đẩy ra phía trước, tạo nên một khối nổi bật. Kết cấu được thực hiện bằng cách đặt dầm song song kéo dài từ tường bê tông lớn, kết nối với thanh thép giằng mái. Nhờ đó, không cần dầm chịu lực giữa, không gian phòng khách mở rộng hoàn toàn với hệ cửa kính lớn, nhìn ra khu vườn xanh mát.

Phòng khách đặt phía trước, hướng tầm nhìn ra sân vườn qua hệ kính kịch trần lớn
Vật liệu cũng là điểm cộng thẩm mỹ giúp ngôi nhà vừa chắc chắn, vừa mềm mại. Tầng 1 dùng sàn gạch, bê tông sơn giả đá, tạo cảm giác vững chãi. Tầng 2 dùng gam sáng, nhẹ hơn để làm nổi khối công trình. Các đường gờ tường mảnh (2mm) được kiến trúc sư khéo léo thêm vào để tăng chiều sâu và tạo sự sắc nét cho các bức tường phun sơn.

Vật liệu gỗ sáng màu mang đến những trải nghiệm thư thái, dễ chịu

Bóng nắng đổ cũng góp phần tô điểm nét tĩnh lặng cho ngôi nhà

Phòng ngủ có thiết kế khá tinh giản, gọn gàng nhờ nội thất thông minh

Bàn ăn với điểm nhấn là bình hoa và đèn thả trần đơn giản
PSNK House trở thành minh chứng sống động cho cách một không gian sống có thể tôn trọng nhu cầu riêng biệt của từng gia đình nhỏ, đồng thời nuôi dưỡng sự kết nối, yêu thương và gắn bó của một đại gia đình nhiều thế hệ.

Khi về chiều, ánh đèn vàng càng tôn vinh một chốn trở về gần gũi, ấm cúng

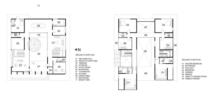
Bản vẽ mặt bằng của PSNK House
Nguồn: Sưu tầm
Ý kiến bạn đọc (0)
Tin cũ hơn
- Kiến trúc sư “hồi sinh” nhà cũ nát thành không gian 500m2 triệu view bên bờ biển (30/09/2025)
- Villa Fuji - “Ẩn mình” giữa phố nhưng không tách rời thiên nhiên (24/09/2025)
- Brighton Villa: Nơi công việc và cuộc sống cùng chạm tới sự cân bằng (22/09/2025)
- OM House - Kiến Trúc Hiện Đại Đối Thoại Cùng Vật Liệu (20/09/2025)
- Ngôi nhà 2 tầng giữa rừng và biển: Tầng dưới nhìn rừng nhiệt đới, tầng trên hướng bi (12/09/2025)
Tin nhiều người đọc
- Nhà một tầng thiết kế kiểu Ý rất đáng cho bạn tham khảo
- Căn biệt thự gỗ đẹp như bước ra từ phim Hàn Quốc cách Hà Nội chỉ hơn 1 giờ lái xe
- Gia chủ Hà Nội lấy cảm hứng sửa nhà từ khúc gỗ bạn tặng
- Tham khảo 10 mẫu biệt thự hiện đại, chi phí xây dựng dưới 1,5 tỷ đồng
- Căn nhà 2 tầng tràn ngập cây xanh ai nhìn cũng mê đắm
Nhà ống
Nhà cấp 4
Chung cư
Văn phòng