Ngôi nhà 2 tầng nằm trên khu đất chéo: Khi nhược điểm biến thành nguồn cảm hứng
Cập nhật: 07:53 12/08/2025
Nằm trên một khu đất có nhiều nhược điểm nhưng Villa Miro đã biến những hạn chế đó trở thành điểm nổi bật. Gia chủ, một nghệ sĩ với gu thẩm mỹ tinh tế cũng đã góp phần giúp không gian ngôi nhà 2 tầng thêm độc đáo và ấn tượng.

Villa Miro mang một vẻ ngoài tối giản nhưng không gian bên trong đầy tính nghệ thuật
Những hạn chế khi xây Villa Miro và giải pháp của đội ngũ kiến trúc sư
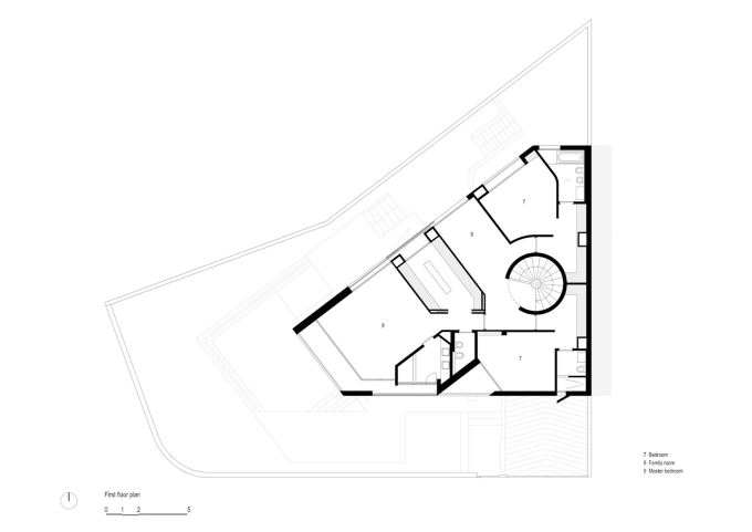
Villa Miro được xây dựng trên một lô đất hình tam giác tại Casablanca. Không chỉ vậy, việc xây ngôi nhà bắt buộc phải có một khoảng lùi nên đội ngũ KTS đã gặp rất nhiều khó khăn. Với hình dạng lô đất đặc biệt và một số yêu cầu phải tuân thủ, các KTS đưa ra giải pháp tạo một điểm trung tâm và bố trí các không gian khác xung quanh điểm trung tâm đó. Điểm trung tâm được lựa chọn ở đây là một chiếc cầu thang xoắn ốc, bao quanh là hệ lam gỗ kéo dài từ sàn lên trần.

Bản vẽ chi tiết Villa Miro và cách sắp xếp không gian chức năng trên khu đất tam giác

Mặt cắt công trình: Villa Miro có 2 tầng và 1 tầng hầm

Mặt cắt công trình: Villa Miro có 2 tầng và 1 tầng hầm

Tính nghệ thuật của ngôi nhà được thể hiện ngay từ diện mạo bên ngoài

Các KTS đã thể hiện đặc điểm vát chéo của khu đất thông qua rất nhiều chi tiết thiết kế có thể nhìn thấy từ mặt tiền
Chiếc cầu thang xoắn ốc này sẽ quản lý hướng tiếp cận khu vực dịch vụ của Villa Miro một cách kín đáo và trôi chảy, định hình phòng gia đình và mở ra không gian phòng khách lớn ở khu vực còn lại. Chiếc cầu thang trung tâm này cũng giúp phân tách 3 phòng ngủ ở tầng 2 và 1 phòng gia đình khác.

Cầu thang xoắn ốc là yếu tố trung tâm của Villa Miro

Bao quanh cầu thang là hệ lam gỗ được xếp tròn ấn tượng

Một phía của cầu thang là căn phòng gia đình ấm cúng

Góc còn lại mở ra phòng khách cũng như không gian sinh hoạt chính rộng rãi
Ở Villa Miro còn có thêm hồ bơi nằm ở mũi khu đất. Từ trong nhà, gia chủ có thể nhìn thấy toàn cảnh hồ bơi nhờ hệ cửa trượt bằng kính lớn.

Một hồ bơi lớn được bố trí ở mũi khu đất

Từ trong phòng khách có thể nhìn ra hồ bơi nhờ hệ cửa kính lớn, kéo dài từ sàn lên trần
Gia chủ phát huy thế mạnh của bản thân khi lựa chọn đồ nội thất và trang trí nhà
Các vật liệu được sử dụng trong Villa Miro đề cao phong cách trang nhã, hiện đại, đan xen nét ấm cúng và… gợi cảm. Gia chủ là một nghệ sĩ, đã thổi một luồng sinh khí đặc biệt vào ngôi nhà bằng cách lựa chọn cẩn thận các tác phẩm nghệ thuật và đồ nội thất trưng bày.

Chủ sở hữu của Villa Miro là một nghệ sĩ nên các chi tiết thiết kế đều mang tính nghệ thuật cao

Các món đồ bày biện đều do tự tay gia chủ lựa chọn tỉ mỉ

Những bức tranh treo tường đậm nét nghệ thuật, quyến rũ và gợi cảm

Việc sắp đặt các tông màu cũng được gia chủ lựa chọn rất khéo

Hệ lam gỗ xếp tròn quanh cầu thang xoắn ốc đôi khi tạo nên hiệu ứng ánh sáng kết hợp vân gỗ đẹp hút mắt

Toàn bộ ngôi nhà tựa như một công trình trưng bày các tác phẩm nghệ thuật
Tuy nằm trên khu đất tam giác chéo, khi xây lại phải lùi vào một khoảng nhưng Villa Miro khi hoàn thiện vẫn “trọn vẹn”, từ chức năng đến tính thẩm mỹ đều đáp ứng tốt mọi nhu cầu của gia chủ. Biến nhược điểm thành điểm nhấn và tận dụng thế mạnh của chính chủ sở hữu, không gian ngôi nhà 2 tầng đẹp như một công trình trưng bày nghệ thuật, đầy gợi cảm và quyến rũ.
Nguồn: Sưu tầm
Ý kiến bạn đọc (0)
Tin mới hơn
- A House in the Farm: Biệt thự 2 tầng giữa vườn dừa mang tinh thần nghỉ dưỡng (Hôm qua)
- Biệt thự hiện đại biến sân trung tâm thành “trái tim” kết nối 3 thế hệ gia đình (03/10/2025)
- Kiến trúc sư “hồi sinh” nhà cũ nát thành không gian 500m2 triệu view bên bờ biển (30/09/2025)
- Villa Fuji - “Ẩn mình” giữa phố nhưng không tách rời thiên nhiên (24/09/2025)
- Brighton Villa: Nơi công việc và cuộc sống cùng chạm tới sự cân bằng (22/09/2025)
Tin cũ hơn
- Cải tạo nhà nghỉ hưu giữa vườn xanh: Ít thay đổi, nhiều giá trị (11/08/2025)
- Bỏ phố về quê, vợ chồng bác sĩ cải tạo nhà vườn bình yên và đầy ánh sáng (05/08/2025)
- QA House: Không gian hiện đại cho gia đình trẻ trong một ngôi nhà phố 3 tầng tại Hải (04/08/2025)
- The Old Becomes New - Nhà đẹp với gam màu trung tính (01/08/2025)
- PR House: Giải pháp sống gắn kết trong vùng nắng gió Phan Rang (23/07/2025)
Tin nhiều người đọc
- Nhà một tầng thiết kế kiểu Ý rất đáng cho bạn tham khảo
- Căn biệt thự gỗ đẹp như bước ra từ phim Hàn Quốc cách Hà Nội chỉ hơn 1 giờ lái xe
- Gia chủ Hà Nội lấy cảm hứng sửa nhà từ khúc gỗ bạn tặng
- Tham khảo 10 mẫu biệt thự hiện đại, chi phí xây dựng dưới 1,5 tỷ đồng
- Căn nhà 2 tầng tràn ngập cây xanh ai nhìn cũng mê đắm
Nhà ống
Nhà cấp 4
Chung cư
Văn phòng