CHO THUÊ XƯỞNG TRONG KCN BÌNH DƯƠNG

Thông tin chi tiết

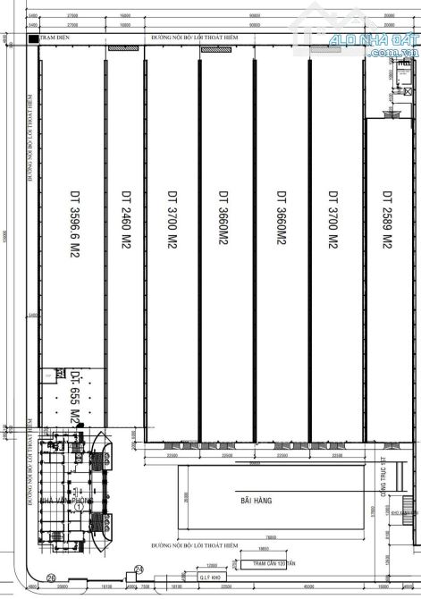
Cho Thuê Xưởng Trong KCN Bình Dương • Diện tích đất: 105.000m2 (10ha, góc 2 mặt tiền) • Diện tích xưởng: 23.365m2 gồm 7 xưởng - 2.460m2 - 2.589m2 - 3.596m2 - 3.660m2 - 3.660m2 - 3.700m2 - 3.700m2 - Cho thuê lẻ từ 6.000m2 trở lên, Khuôn viên sân bãi chung • Thiết kế: Có điện 3 pha, PCCC tự động thẩm duyệt, Văn phòng (655m2), nhà bảo vệ • Pháp lý: sổ hồng riêng, giấy tờ đầy đủ, hoàn công trên sổ. • Đường nhựa xe container 40F chạy thoải mái, bãi đậu xe rộng rãi, dân cư đông đúc dễ tuyển công nhân, giao thông thuận tiện, xưởng thuận tiện nhập hàng, xuất hàng. • Hỗ trợ khách hàng đăng ký vốn đầu tư FDI nước ngoài • Chủ trương sản xuất: ưu tiên cơ khí, gia công thép... không tiếp ngành gỗ • Giá thuê xưởng: 4.2$/m2/tháng Có thương lượng • Cọc 6 tháng, Hợp đồng 5 năm trở lên

Giá: 109 ngàn / m²  / tháng Diện tích: 6.000
Địa chỉ tài sản:
Đường 1 Tháng 12, Phường Bình Dương, Hồ Chí Minh

Đường 1 Tháng 12, Phường Phú Tân, Thành phố Thủ Dầu Một, Bình Dương

(địa chỉ cũ)

Các thông tin khác

Mã tin16561430Hướng_Phòng ăn---
Loại tinCho thuêĐường trước nhà---Nhà bếp---
Loại BDSKho, xưởngPháp lý---Sân thượng---
Chiều ngang---Số lầu---Chổ để xe hơi---
Chiều dài---Số phòng ngủ---Chính chủ---
Hình ảnh

Hình ảnh

CHO THUÊ XƯỞNG TRONG KCN BÌNH DƯƠNG
  • CHO THUÊ XƯỞNG TRONG KCN BÌNH DƯƠNG - 0
  • CHO THUÊ XƯỞNG TRONG KCN BÌNH DƯƠNG - 1
  • CHO THUÊ XƯỞNG TRONG KCN BÌNH DƯƠNG - 2
Có thể bạn muốn xem:

Phản ánh tin rao vi phạm

Thông tin phản ánh của Quý khách giúp chúng tôi sàn lọc thông tin tốt hơn và loại trừ các nhà môi giới không trung thực. Xin trân trọng cám ơn.


Tôi không muốn xem tin của người đăng này trong vòng: Tất cả các tin của thành viên này sẽ ẩn đi với bạn trong khoảng thời gian bạn đã chọn.
Mã an toàn:

Cho thuê Kho, xưởng tại Thành phố Thủ Dầu Một

Cho thuê 6500m2 xưởng ngay KCN Vsip 2, Bình Dương, PCCC tự động, hoàn công giấy tờ đầy đủ

Cho thuê xưởng trong cụm công nghiệp Thủ Dầu Một Bình Dương. - Vị trí ngay: KCN Vsip II Kim Huy Sóng Thần 3 TPM Bình Dương. - Vị trí trung tâm, CỤM CN, đường cont 24/h. - Tổng diện tích khuôn viên đất: 11. 000 m². - ...... << Xem chi tiết >>

Giá: 87 ngàn / m²  / tháng Diện tích: 6500

Đường Điện Biên Phủ, Phường Bình Dương, Hồ Chí Minh

Đường Điện Biên Phủ, Phường Phú Tân, Thành phố Thủ Dầu Một, Bình Dương (cũ)

Cho thuê xưởng 10.000- 35.000m2 gần KCN Đại Đăng, KCN Sóng Thần 3, Thủ Dầu Một Bình Dương

Cho thuê xưởng gần KCN Đại Đăng, KCN Sóng Thần 3, Thủ Dầu Một, Bình Dương. - Tổng diện tích: 50.000m². - Diện tích xưởng: 10.000m², 15.000m², 25.000m², 35.000m² - Văn phòng từ 200m². - Đường xe container không cấm gi...... << Xem chi tiết >>

Giá: 75 ngàn / m²  / tháng Diện tích: 10000

Đường 1 Tháng 12, Phường Bình Dương, Hồ Chí Minh

Đường 1 Tháng 12, Phường Phú Tân, Thành phố Thủ Dầu Một, Bình Dương (cũ)

Cho Thuê 5.900m2 Nhà Xưởng Trong KCN TP Mới  Bình Dương PCCC Tự Động

Cho Thuê 5.900m2 Nhà Xưởng Trong KCN TP Mới Bình Dương PCCC Tự Động • Tổng diện Tích khuôn viên Đất: 10.000m2 • Diện Tích xây dựng Xưởng: 5.900m2 • PCCC Tự động nghiệm thu • Trạm Điện Lớn: 560 KVA • Đường nhựa ...... << Xem chi tiết >>

15m
Giá: 660 triệu / tháng Diện tích: 5900 KT: 50x120m

Đường D, Phường Bình Dương, Hồ Chí Minh

Đường D, Phường Phú Tân, Thành phố Thủ Dầu Một, Bình Dương (cũ)

CHO THUÊ XƯỞNG TRONG KCN BÌNH DƯƠNG

Cho Thuê Xưởng Trong KCN Bình Dương • Diện tích đất: 105.000m2 (10ha, góc 2 mặt tiền) • Diện tích xưởng: 23.365m2 gồm 7 xưởng - 2.460m2 - 2.589m2 - 3.596m2 - 3.660m2 - 3.660m2 - 3.700m2 - 3.700m2 - Cho thuê lẻ t...... << Xem chi tiết >>

Giá: 109 ngàn / m²  / tháng Diện tích: 6000

Đường 1 Tháng 12, Phường Bình Dương, Hồ Chí Minh

Đường 1 Tháng 12, Phường Phú Tân, Thành phố Thủ Dầu Một, Bình Dương (cũ)

Cho Thuê 6.600m2 Kho Xưởng Trong KCN Tân Uyên Bình Dương Giá 3.5$/m2

Cho Thuê 6.600m2 Kho Xưởng Trong KCN Tân Uyên Bình Dương Giá 3.5$/m2 ⁃ Tổng diện tích đất khuôn viên riêng 11.500m² - DT Xưởng 6.600m² - Văn phòng xây dựng 200m² ngoài xưởng - Điện hạ trạm 560 KVA ⁃ PCCC nghiệm...... << Xem chi tiết >>

20m
Giá: 575 triệu / tháng Diện tích: 6600 KT: 90x120m

Đường D1, Phường Bình Dương, Hồ Chí Minh

Đường D1, Phường Phú Tân, Thành phố Thủ Dầu Một, Bình Dương (cũ)