TOÀ NHÀ VĂN PHÒNG 4,000 M2- NGANG 35M- GÓC 2MT CÁCH MẠNG THÁNG 8- 2,8 TỶ/TH

Thông tin chi tiết

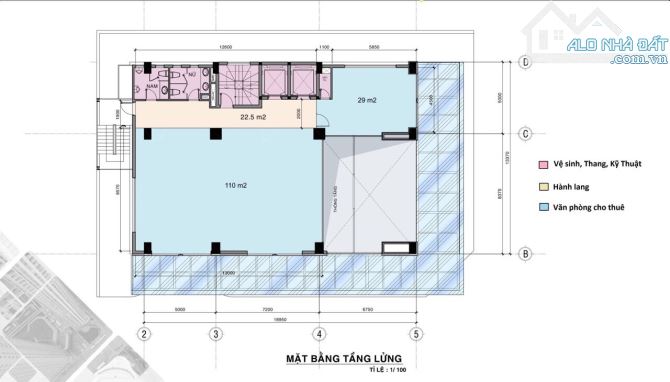
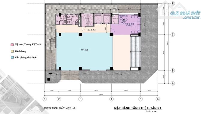
CHO THUÊ NGUYÊN TOÀ NHÀ VĂN PHÒNG 4,000 M2 ----------- VỊ TRÍ: GÓC 2MT CMT8 NGAY CÔNG VIÊN TAO ĐÀN, QUẬN 1 DT: 500 M2 - NGANG 35M HIỆN TRẠNG: 3 HẦM+ 12 TẦNG + 2 THANG MÁY TỔNG SÀN: 4,200 M2 GIÁ: 2,8 TỶ/TH ----- LH: A HUY ----- TOÀ NHÀ XÂY DỰNG THEO TIÊU CHUẨN HIỆN ĐẠI NÊN SÀN TRỐNG SUỐT RẤT SANG TRỌNG MẶT TIỀN ỐP KÍNH CƯỜNG LỰC CÁCH NHIỆT HỆ THỐNG ĐIỆN CAO CẤP - HỆ THỐNG LẠNH TRUNG TÂM

Giá: 2,8 tỷ / tháng Diện tích: 4.000
Địa chỉ tài sản:
Đường Cách Mạng Tháng Tám, Phường Bến Thành, Hồ Chí Minh

Đường Cách Mạng Tháng Tám, Phường Bến Thành, Quận 1, Hồ Chí Minh

(địa chỉ cũ)

Các thông tin khác

Mã tin16559622Hướng_Phòng ăn---
Loại tinCho thuêĐường trước nhà35mNhà bếp---
Loại BDSVăn phòngPháp lýSổ hồng/ Sổ đỏSân thượng---
Chiều ngang35mSố lầu10Chổ để xe hơi---
Chiều dài25mSố phòng ngủ12Chính chủ---
Hình ảnh

Hình ảnh

TOÀ NHÀ VĂN PHÒNG 4,000 M2- NGANG 35M- GÓC 2MT CÁCH MẠNG THÁNG 8- 2,8 TỶ/TH
  • TOÀ NHÀ VĂN PHÒNG 4,000 M2- NGANG 35M- GÓC 2MT CÁCH MẠNG THÁNG 8- 2,8 TỶ/TH - 0
  • TOÀ NHÀ VĂN PHÒNG 4,000 M2- NGANG 35M- GÓC 2MT CÁCH MẠNG THÁNG 8- 2,8 TỶ/TH - 1
  • TOÀ NHÀ VĂN PHÒNG 4,000 M2- NGANG 35M- GÓC 2MT CÁCH MẠNG THÁNG 8- 2,8 TỶ/TH - 2
Có thể bạn muốn xem:

Phản ánh tin rao vi phạm

Thông tin phản ánh của Quý khách giúp chúng tôi sàn lọc thông tin tốt hơn và loại trừ các nhà môi giới không trung thực. Xin trân trọng cám ơn.


Tôi không muốn xem tin của người đăng này trong vòng: Tất cả các tin của thành viên này sẽ ẩn đi với bạn trong khoảng thời gian bạn đã chọn.
Mã an toàn:

Cho thuê Văn phòng tại Quận 1

TOÀ NHÀ VP 5,340 M2 - MT PASTEUR NGAY CV 30/4- DT: 35X30-GIÁ: 2,9 TỶ/TH

CHO THUÊ TOÀ NHÀ VĂN PHÒNG ĐƯỢC XÂY DỰNG THEO PHONG CÁCH KIẾN TRÚC HIỆN ĐẠI NHIỆT ĐỚI ĐẶC TRƯNG CỦA SÀI GÒN 1975 KẾT HỢP VỚI VẬT LIỆU HIỆN ĐẠI GIÚP MANG TỚI KHÔNG GIAN TRẢI NGHIỆM ĐỘC ĐÁO VÀ CHẤT LƯỢNG CÔNG TRÌNH ĐẠT TIÊ...... << Xem chi tiết >>

20m9 tầng10 phòng ngủChỗ để xe
Giá: 2,9 tỷ / tháng Diện tích: 1000 KT: 35x30m

Đường Pasteur, Phường Sài Gòn, Hồ Chí Minh

Đường Pasteur, Phường Bến Nghé, Quận 1, Hồ Chí Minh (cũ)

TOÀ NHÀ GÓC 2MT CÁCH MẠNG THÁNG 8- DTSD: 4,000 M2- NGANG 32M- GIÁ: 2,5 TỶ/TH

CHO THUÊ TOÀ NHÀ GÓC 2MT CÁCH MẠNG THÁNG 8, P BẾN THÀNH, QUẬN 1 DT: 400 M2/SÀN CẤU TRÚC: 3 HẦM+ 12 TẦNG DTSD: 4,000 M2 CÓ 2 THANG MÁY KHÁCH VÀ 1 THANG DỊCH VỤ HỆ THỐNG ĐIỀU HOÀ TRUNG TÂM GIÁ: 2,5 TỶ/TH --------- ...... << Xem chi tiết >>

35m13 tầng13 phòng ngủChỗ để xe
Giá: 2,5 tỷ / tháng Diện tích: 4000 KT: 35x20m

Đường Cách Mạng Tháng Tám, Phường Bến Thành, Hồ Chí Minh

Đường Cách Mạng Tháng Tám, Phường Bến Thành, Quận 1, Hồ Chí Minh (cũ)

TOÀ NHÀ VĂN PHÒNG 4,000 M2- NGANG 35M- GÓC 2MT CÁCH MẠNG THÁNG 8- 2,8 TỶ/TH

CHO THUÊ NGUYÊN TOÀ NHÀ VĂN PHÒNG 4,000 M2 ----------- VỊ TRÍ: GÓC 2MT CMT8 NGAY CÔNG VIÊN TAO ĐÀN, QUẬN 1 DT: 500 M2 - NGANG 35M HIỆN TRẠNG: 3 HẦM+ 12 TẦNG + 2 THANG MÁY TỔNG SÀN: 4,200 M2 GIÁ: 2,8 TỶ/TH ----- L...... << Xem chi tiết >>

35m10 tầng12 phòng ngủ
Giá: 2,8 tỷ / tháng Diện tích: 4000 KT: 35x25m

Đường Cách Mạng Tháng Tám, Phường Bến Thành, Hồ Chí Minh

Đường Cách Mạng Tháng Tám, Phường Bến Thành, Quận 1, Hồ Chí Minh (cũ)

TÒA NHÀ VĂN PHÒNG 7,700 M2- MT PASTEUR CÁCH DINH ĐỘC LẬP 3 BƯỚC CHÂN- GIÁ: 2,7 TỶ/TH

CHO THUÊ TÒA NHÀ VĂN PHÒNG NGAY MT PASTEUR CÁCH NHÀ THỜ ĐỨC BÀ VÀ DINH ĐỘC LẬP CHỈ VÀI BƯỚC CHÂN. DT: 25X35 HIỆN TRẠNG: 2 HẦM+ 12 TẦNG( CÓ 3 THANG MÁY TỐC ĐỘ CAO ) TÌNH TRẠNG NỘI THẤT CHẤT LƯỢNG CÔNG TRÌNH CÒN MỚI 1 ...... << Xem chi tiết >>

25m12 tầng12 phòng ngủChỗ để xe
Giá: 2,7 tỷ / tháng Diện tích: 7700 KT: 25x35m

Đường Pasteur, Phường Sài Gòn, Hồ Chí Minh

Đường Pasteur, Phường Bến Nghé, Quận 1, Hồ Chí Minh (cũ)

TÒA NHÀ VĂN PHÒNG 7,700 M2- MT PASTEUR, BẾN NGHÉ,Q1- NGANG 40M- 2,7 TỶ/TH

CHO THUÊ TÒA NHÀ VĂN PHÒNG 7,700 M2 VỊ TRÍ: MT PASTEUR GẦN CÔNG VIÊN TRUNG TÂM DT: 40X40 HIỆN TRẠNG: 2 HẦM+ 15 TẦNG TỔNG DTSD: 7,700 M2 CÓ 3 THANG MÁY TỐC ĐỘ CAO VIEW NHIỀU CÂY XANH MÁT TÒA NHÀ CHUẨN HẠNG A GIÁ: ...... << Xem chi tiết >>

30m15 tầng15 phòng ngủChỗ để xe
Giá: 2,7 tỷ / tháng Diện tích: 1600 KT: 40x35m

Đường Pasteur, Phường Sài Gòn, Hồ Chí Minh

Đường Pasteur, Phường Bến Nghé, Quận 1, Hồ Chí Minh (cũ)