B House: Khi kiến trúc không chỉ để ở, mà để tìm lại sự bình yên giữa phố thị
Cập nhật: 07:46 16/09/2025
Tọa lạc trong một con hẻm nhỏ yên tĩnh ở ngoại ô TP.HCM, B House là tổ ấm của một gia chủ làm trong lĩnh vực thiết kế không mang tham vọng phô trương mà đi theo hướng ngược lại: nhà hướng nội lấy sáng, bảo vệ khỏi bụi, tiếng ồn, nắng nóng... nhưng vẫn mở ra đủ cho ánh sáng, gió và thiên nhiên len vào từng góc.
Yêu cầu đặt ra rất rõ ràng: Không gian phải “hướng nội” nhưng không tách biệt, có thể bố trí không gian kết nối gia đình cho ba thế hệ, đồng thời tối giản, mộc mạc mà tinh tế.
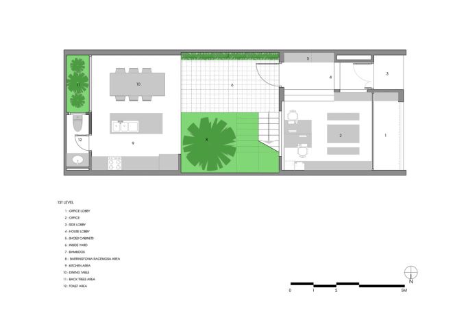
Kết quả là một công trình nhà trong hẻm dung hòa được tất cả yếu tố đó nhờ cấu trúc thiết kế 2 lớp: một lớp tường bê tông thông gió 30x30cm bao ngoài, sau đó là lớp cây xanh đệm, rồi mới tới lõi nhà bằng kính lớn đón sáng. Giải pháp này giúp giảm nhiệt nhà phố, lọc bụi, chắn tiếng ồn mà không mất đi cảm giác thoáng đãng, gần gũi.


Kiến trúc thân thiện môi trường, sử dụng vật liệu địa phương
Ngay từ đầu, bài toán đặt ra là làm sao để ngôi nhà phố có thể “thở” cùng tự nhiên. Không dùng máy lạnh, không phụ thuộc đèn điện ban ngày – ánh sáng tự nhiên và thông gió tự nhiên trong nhà trở thành hai yếu tố chủ đạo. Tường bê tông rỗng, mái kính di động, các khoảng vườn đệm xen kẽ giúp nhà luôn mát, không bí bách.



Mỗi vật liệu đều được chọn với tiêu chí bền, gần gũi và tiết kiệm. Ngôi nhà sử dụng vật liệu địa phương, tận dụng nguồn cung sẵn có để vừa giảm chi phí, vừa giữ được bản sắc vùng miền. Những đường nét thô mộc của tường bê tông, gạch thô và gỗ tự nhiên góp phần tạo nên nét dung dị, thân thiện và lâu bền với thời gian – đúng tinh thần kiến trúc thân thiện môi trường.






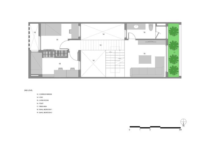
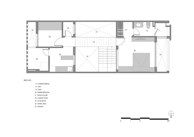
Nhà phố có vườn giữa nhà – không gian chung kết nối 3 thế hệ
Điểm đặc biệt nhất không nằm ở lớp tường hay mái nhà mà là một khu vườn giữa nhà, nơi kết nối mọi thành viên trong gia đình. Không gian chung này không chỉ có cây xanh, sân nhỏ, xích đu, cầu thang gỗ mà còn là “trái tim cảm xúc” của ngôi nhà: nơi ông bà có thể thư giãn, bố mẹ nấu nướng, con trẻ vui chơi và cả nhà cùng nhìn thấy nhau.




Ánh nắng buổi trưa hắt xuống mặt vườn, buổi chiều lọc qua lớp gạch thông gió, tạo ra những khoảng bóng đổ đẹp mắt và cảm xúc. Nhờ cách tổ chức khéo léo này, dù sống trong nhà phố nhưng gia chủ vẫn có thể cảm nhận được gió thật, nắng thật, và sự sống động của thiên nhiên mỗi ngày.





B House không chỉ mang đến một giải pháp kiến trúc thông minh giữa lòng đô thị, mà còn là cách gia chủ định nghĩa lại khái niệm “sống”. Một nơi không quá phô trương, nhưng đủ để mỗi thành viên được thở, được gắn kết, được tìm thấy sự bình yên giữa thiên nhiên. Và có lẽ, chính sự giản dị, chân thành trong từng lựa chọn vật liệu, từng góc vườn – mới là điều khiến ngôi nhà trở thành tổ ấm thật sự.







Nguồn: Sưu tầm
Ý kiến bạn đọc (0)
Tin mới hơn
- Cải tạo nhà phố từ phòng khám bỏ hoang: Tối ưu ánh sáng nhờ giải pháp “khoét trần” (02/10/2025)
- Ban Khun Phan: Cải tạo nhà phố theo nguyên tắc “ít mà đủ, cũ mà sống được” (27/09/2025)
- Truc House – Gạch Đất Nung Trong Bản Sắc Kiến Trúc Hiện Đại (23/09/2025)
- Nhà 3 gang – Ngôi nhà ống được “may đo” cho cuộc sống và công việc (18/09/2025)
Tin cũ hơn
- Màn cải tạo tầng trệt từ lối đi tối tăm trở thành không gian sinh hoạt đa năng (13/09/2025)
- Nhà phố 3 tầng hiện đại: Không gian xanh từ những giới hạn tưởng chừng bất lợi (11/09/2025)
- Ngôi nhà 17x8m khắc phục mặt tiền Tây bằng thiết kế mở trong – kín ngoài (06/09/2025)
- Nhà Tô Hiệu - Nhà phố 3 tầng mặt tiền 4m dành cho gia đình trẻ 4 người (28/08/2025)
- Nhà trong hẻm 27m2 đầy gió, ánh sáng và ký ức đẹp của cặp đôi trẻ (25/08/2025)
Nhà cấp 4
Biệt thự
Chung cư
Văn phòng