Small House 02 - Nhà 1 tầng thiết kế mở để tăng tương tác gia đình
Cập nhật: 08:50 03/02/2025
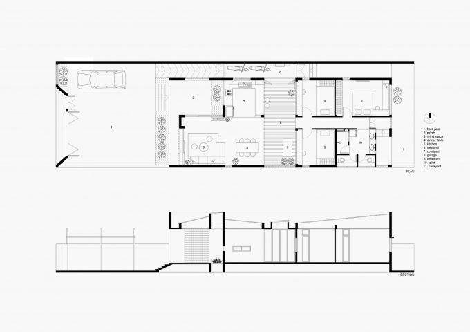
Khách hàng là một gia đình trẻ với hai cậu con trai nhỏ. Sau giờ làm việc căng thẳng ở văn phòng, anh chị mong muốn căn nhà mình trở về là nơi có không gian ấm áp và yên tĩnh, có thể nhìn ngắm cây xanh, ánh nắng, mây trời, được cảm nhận làn gió mát mỗi buổi chiều. Đặc biệt, anh chị muốn tận dụng những khoảng thời gian hiếm hoi buổi chiều tối để gặp gỡ và trò chuyện cùng con cái, có thể chơi cùng con, học cùng con. Vì thế, khi chọn giải pháp bố cục không gian, tính kết nối được kiến trúc sư ưu tiên hàng đầu.




Khu đất thiết kế cách trung tâm thành phố Bến Tre khoảng 10km, có diện tích khá rộng và mặt tiền hướng Tây. Với tiêu chí thiết kế trên, kiến trúc sư đã chọn phương án nhà một tầng, tách biệt khu sinh hoạt và khu nghỉ ngơi bằng khoảng sân giữa nhà. Khoảng sân này là không gian kết nối các thành viên trong gia đình, có chức năng linh hoạt, vừa là nơi thư giãn, góc làm việc, tập thể dục, khu chơi đùa của con cái. Cây xanh được đặt xen kẽ vào các không gian, giúp không khí thêm trong lành và mát mẻ.




Cửa chính xoay về hướng Bắc, được tiếp cận bằng sảnh đệm lớn, nhằm tránh ánh nắng trực tiếp, sảnh này cũng là khoảng thư giãn cho khách hàng vào mỗi buổi chiều tối. Hệ thống thông gió tự nhiên được bố trí xuyên suốt công trình bằng giải pháp tường hai lớp: lớp gạch thông gió và lớp cửa kính lùa. Giải pháp này vừa tránh gắt, giúp đối lưu gió tốt và đem lại sự kín đáo cần thiết cho gia đình.







Công trình sử dụng gạch thông gió bằng đất nung, màu gỗ trầm trên nền sơn trắng, kết hợp các mảng xanh, tạo nét hiện đại pha chút thô mộc hòa lẫn với thiên nhiên. Các chất cảm này đem lại cảm giác ấm áp và thư giãn cho gia đình.



Khi lựa chọn giải pháp thiết kế, kiến trúc sư mong muốn dù sinh hoạt ở bất kỳ không gian nào, các thành viên trong gia đình đều có thể nhìn thấy nhau và trò chuyện cùng nhau, giúp bầu không khí gia đình thêm ấm cúng. Đó cũng là “chất cảm” quan trọng nhất mà nhóm thiết kế mong muốn đem lại cho khách hàng.




Nguồn: Sưu tầm
Ý kiến bạn đọc (0)
Tin mới hơn
- Căn nhà chia đôi mảnh đất vuông thành hai tam giác, tưởng bất hợp lý mà cực lý tưởng (Hôm qua)
- “1gian” – Nhà ngói đỏ bên sông mộc mạc, gần gũi giữa miền quê Nghệ An (06/10/2025)
- Chỉ dùng bê tông và gỗ, nhà 64m2 vẫn chạm tới vẻ đẹp nguyên bản nhất của thiên nhiên (26/09/2025)
- Bưng Riềng House – Nhà 1 tầng ẩn mình giữa rừng, giao thoa kiến trúc và thiên nhiên (25/09/2025)
- Căn nhà một tầng đẹp nhẹ nhàng tại Quảng Nam: Món quà của chàng rể dành cho mẹ vợ (19/09/2025)
Tin cũ hơn
- Peaceful House - Nhà 2 tầng tối giản và bình yên (25/01/2025)
- Minh’s House - Nhà cấp 4 mái ngói đỏ tại Bình Thuận (22/01/2025)
- Ngôi nhà gỗ đặc bền vững, tối giản không gian nhưng tối ưu chất lượng sống (20/01/2025)
- Bình Thuận House - Nhà 1 tầng với nhiều khác biệt (17/01/2025)
- NOM House - Tổ ấm bình yên của gia đình 3 người ở Gia Lai (13/01/2025)
Nhà ống
Biệt thự
Chung cư
Văn phòng