Việt Trì House: Tìm bình yên trong lòng thành phố
Cập nhật: 07:48 23/08/2025
Việt Trì House là dự án cải tạo nhà phố được kiến trúc sư của I.HOUSE thực hiện vào mùa hè năm 2023. Với hiện trạng là một nhà ống 5x19,5m đẹp, tọa lạc tại trung tâm thành phố Việt Trì và đối mặt với hướng chính Tây – công trình đặt ra bài toán hóc búa về việc chống nóng, lấy sáng, tối ưu diện tích và tạo ra không gian sống đúng nghĩa “nghỉ ngơi” cho gia chủ.
Giải quyết bài toán cải tạo nhà hướng Tây
Giống như nhiều nhà ống hướng Tây khác, căn nhà cũ có kết cấu bí bách, thang bộ chiếm nhiều diện tích, gây chắn tầm nhìn và cản trở giao thông. Các phòng chức năng thiếu sáng, phân bổ không hợp lý và không tạo được sự thư giãn cho người sử dụng.
Điều thách thức nhất là hướng chính Tây – nơi ánh nắng buổi chiều chiếu trực diện, khiến ngôi nhà nóng bức và bức bí vào mùa hè. Kết hợp với vị trí nằm sát trục đường lớn, tiếng ồn và bụi cũng là những yếu tố ảnh hưởng tiêu cực đến chất lượng sống.
Tuy nhiên, công trình lại sở hữu lợi thế lớn: hai đầu nhà đều có không gian phụ cận rộng rãi, thoáng và nhiều cây xanh – một “kho báu” chưa được khai thác đúng cách.


Vật liệu đá ong xám – Bản sắc thẩm mỹ và hiệu năng nhiệt
Từ ngoài vào trong, vật liệu chủ đạo của công trình là đá ong xám, bê tông mài, gỗ và kính. Đặc biệt, bức tường đá ong lửng phía mặt tiền không chỉ giúp cản nắng, giảm tiếng ồn mà còn tạo hiệu ứng thị giác thú vị – thay đổi màu sắc theo thời tiết, tạo chiều sâu cảm xúc cho người sống bên trong.
Sự phối hợp của lam nhựa giả gỗ ngoài trời, đá thô và các vật liệu tự nhiên khác không chỉ tăng hiệu quả cách nhiệt mà còn mang lại vẻ ngoài thanh lịch, bền bỉ, phù hợp với khí hậu nhiệt đới Việt Nam.



Thiết kế nhà có giếng trời và không gian đệm làm mát
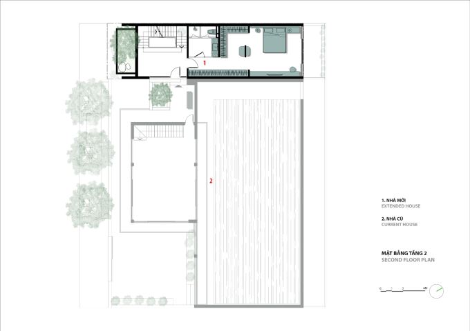
Để tái cấu trúc không gian, nhóm thiết kế đã chuyển toàn bộ thang bộ và sảnh đón ra phía trước, đồng thời tạo ra khoảng thông tầng và giếng trời – giải pháp vừa lấy sáng, vừa lưu thông không khí theo trục đứng, hạn chế tích nhiệt.



Các không gian sinh hoạt chính như phòng khách, bếp, ăn và gara được giữ lại ở nhà cũ, trong khi phần mở rộng được kết nối bằng những mảng xanh, vườn nhỏ đan xen, tạo sự chuyển tiếp mềm mại giữa cũ và mới. Những mảng vườn treo trước mặt tiền cũng là giải pháp chống nóng nhà hướng Tây hiệu quả, giảm bức xạ nhiệt và tạo vẻ mát mẻ ngay từ cái nhìn đầu tiên.












Nhà nhiều mảng xanh, tận dụng tối đa ánh sáng tự nhiên
Lấy cảm hứng từ triết lý “Less is more”, kiến trúc I.HOUSE đã sử dụng các hình khối kiến trúc đơn giản nhưng giàu nhịp điệu. Hệ thống cửa kính lớn ở mặt trước và sau giúp thiết kế nhà có giếng trời khai thác tối đa ánh sáng tự nhiên và tận hưởng cảnh quan xanh mát từ các công trình phụ cận.
Bên trong ngôi nhà, không gian nào cũng có ánh sáng len lỏi, bóng đổ thay đổi theo thời gian, tạo nên những “bức tranh sống động” – nơi cảm quan thị giác luôn được kích thích nhẹ nhàng mà đầy chất thơ.












Việt Trì House là một trong những ví dụ điển hình cho việc cải tạo nhà ống hướng Tây thành không gian sống xanh, tinh giản nhưng đầy chất lượng. Bằng cách sử dụng vật liệu thân thuộc, thiết kế thông minh và nhiều lớp cây xanh, công trình đã chứng minh rằng nhà phố cũng có thể “thở”, mát mẻ và đầy cảm hứng mỗi ngày.






Nguồn: Sưu tầm
Ý kiến bạn đọc (0)
Tin mới hơn
- Sống an yên trong “hộp đen” – Ngôi nhà hướng nội giữa phố thị Sài Gòn (Hôm qua)
- Cải tạo nhà phố từ phòng khám bỏ hoang: Tối ưu ánh sáng nhờ giải pháp “khoét trần” (02/10/2025)
- Ban Khun Phan: Cải tạo nhà phố theo nguyên tắc “ít mà đủ, cũ mà sống được” (27/09/2025)
- Truc House – Gạch Đất Nung Trong Bản Sắc Kiến Trúc Hiện Đại (23/09/2025)
- Nhà 3 gang – Ngôi nhà ống được “may đo” cho cuộc sống và công việc (18/09/2025)
Tin cũ hơn
- Thiết kế nhà ở kết hợp văn phòng: Bài toán được giải khéo trong Trầm Hương House (19/08/2025)
- Ngôi nhà mái gấp – mở linh hoạt, kết nối làng quê và đô thị (13/08/2025)
- Green Box House: Ngôi nhà ống mở của ba thế hệ giữa lòng quận 4 (31/07/2025)
- Căn nhà phố Hà Nội mang vẻ đẹp và cảm xúc của nữ gia chủ ngành thời trang (29/07/2025)
- Nhà Ái Nghĩa – Kết nối hai thế hệ qua một khoảng sân chung (25/07/2025)
Nhà cấp 4
Biệt thự
Chung cư
Văn phòng